Лестница металлическая гост — Строим лестницу в частном доме

Лестницы являются неотъемлемой составляющей многоэтажных жилых и промышленных строений. Чтобы они обеспечивали комфортное и безопасное перемещение, к ним предъявляется немало требований. ГОСТ содержит пункты, затрагивающие производство маршей и ограждений, а также технические условия для металлоконструкций и разных типов.
Виды и области применения лестниц из металла
Металлические марши могут быть двух видов: наружными и внутренними. Наружные, как правило, представляют собой облегченные конструкции. Для их изготовления применяют металлические профили или трубы. Ступени из ПВЛ весьма практичны для наружных установок, так как их легче защитить от обледенения.
Все наружные металлические лестницы обязательно должны подвергаться антикоррозийной обработке.
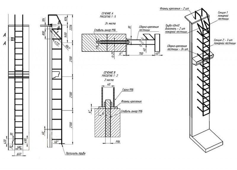
К наружным маршам из металла относятся и пожарные лестницы. В большинстве случаев они бывают стационарными. Однако встречаются ручные или навесные модификации.
Обратите внимание
Установка произведенных по ГОСТу лестниц металлических производится и внутри помещений. Внутренние металлические марши в большей мере характерны для производственных либо складских помещений.
Требованиями ГОСТ оговаривается не только производство конструкции, но и применяемые материалы.
Для ограждений внутренних лестниц не используют ПВХ и прочие материалы, выделяющие при горении ядовитые вещества.
Проектирование металлической лестницы
При проектировании лестничного марша учитывается так называемая полезная ширина.
Для одного проходящего этот показатель составляет минимум 800 мм, тогда как для прохода сразу двух человек потребуется не менее 1000 мм.
Если лестницей соединены более двух этажей, то минимальная ширина марша должна составлять 1000 мм. При меньшем значении перенос крупногабаритных вещей может оказаться проблематичным.
Ширина марша должна оставаться неизменной по всей длине.
Количество ступеней в одном марше колеблется от 3 до 18. Ширина проступи должна быть достаточной для удобного перемещения. Ступени разделяют на три вида:
Требования предъявляются и к освещенности. Особенно это касается крайних ступеней. Выключатели должны находиться в пределах досягаемости. Если вдоль лестничного марша расположены оконные проемы, они должны быть отделены ограждением.
ГОСТ регламентирует и то, как должны производиться металлические ограждения. Их минимальная высота 900 мм, а зазор между стойками должен быть не более 150 мм. Если среди пользующихся лестницей будут дети, высота перил становится минимум 1500 мм, а расстояние между стойками – 100 мм. Однако ограждения для наружных лестниц могут быть чуть ниже, их минимальная высота – 800 мм.
Требования к конструкции деревянной лестницы
ГОСТ включает в себя требования как к приставным, так и к стационарным деревянным лестницам. Приставные модели относятся к переносным конструкциям. Так как они могут достигать высоты в 5 м, они должны быть выполнены в соответствии со строительными нормами. Изготовленная по ГОСТу лестница деревянная проверяется по следующим показателям:
- технология производства;
- размер установки;
- конструкция;
- условия эксплуатации.
Согласно нормативным документам ГОСТ, деревянные перекладины запрещается закреплять при помощи гвоздей. Для фиксации ступеней в тетивах на них делают выступы, а на тетивах в свою очередь – пазы. Расстояние между ступенями не должно превышать 40 см, как и расстояние от пола до первой ступени. Деревянные тетивы по всей длине скрепляются стяжными болтами с интервалом в 2 м.
Предписанными для изготовления приставных лестниц материалами по ГОСТу являются древесина твердых пород, таких как дуб или ясень, либо древесина сосны (сорт 1, влажность не более 15%). Скрепляют деревянные детали посредством водостойкого клея. Выступы ступеней должны полностью заходить в пазы на тетивах.
Готовые деревянные лестницы покрывают олифой и специальным лаком. Металлический крепеж окрашивают черной краской. Покрывать краской деревянные элементы конструкции запрещено.
ГОСТ регламентирует не только производство и параметры самой конструкции, но и условия безопасной работы с ней. В частности, запрещено сращивание нескольких приставных лестниц.
Важно
Как для верхних, так и для нижних концов тетив необходима опора. Если установку нужно расположить на гладкой поверхности, на ее нижних концах должны быть нескользящие резиновые накладки.
Для работы на рыхлом грунте рекомендуется применять острые наконечники.
Приставные деревянные лестницы располагают под углом не более 75º. Работать можно, стоя на ступени, расположенной не ближе 1 м от верхнего края конструкции. Чтобы лестница не подвела в нужный момент, рекомендуется каждые полгода проводить ее испытания.
Требования ГОСТ для стационарных лестниц
Чтобы стационарные деревянные лестницы были удобными и надежными, они также должны соответствовать требованиям ГОСТ. Имеющий более трех ступеней лестничный марш должен быть оборудован ограждением.
Когда марш проходит вдоль стены, целесообразно расположить перила только с внешней стороны. В зависимости от потребностей жильцов можно закрепить на стене идущий параллельно поручень.
Если лестницей будут пользоваться дети, стоит установить дополнительное ограждение меньшей высоты.
ГОСТ регламентирует и угол наклона марша. Верхней границей считается отметка 45º, однако наиболее комфортным является угол 35º. Вне зависимости от конфигурации лестницы, она проектируется в соответствии с этими показателями. Для удобства перемещения оптимальна высота подступенка порядка 170 мм.
Еще одно требование – высота прохода. Она определяется высотой от поверхности ступени до потолка. Высота должна быть достаточной, чтобы прошел взрослый человек – около 2 м. Однако с учетом того, что по лестнице придется переносить мебель и подобные крупногабаритные вещи, высоту прохода можно немного увеличить.
Соответствие требованиям ГОСТ обеспечит надежность, комфорт и безопасность при пользовании лестницей. Интересными дополнениями можете поделиться, введя их в поле для комментариев.
ГОСТ: лестницы металлические, деревянные – требования, правила
Рассмотрены требования ГОСТ: лестницы металлические, из дерева. Рассказано о безопасной эксплуатации пожарных и домашних конструкций.
Источник: 7lestnic.com
Металлическая лестница это достаточно прочная конструкция.
Лестницы из металла бесспорно являются наиболее популярными. Иногда их монтаж предпочтителен, а в некоторых ситуациях просто неизбежен. Металлические конструкции имеют разную форму и назначение. Отличаются высокой грузоподъемностью, безопасностью, прочностью, большим периодом эксплуатации.
Наружную металлическую лестницу, можно украсить кованными перилами.
Список нормативных документов
Для монтажа лестничных маршей разработан ряд требований, которые изложены в ГОСТах, так:
- ГОСТ 23120 78 — систематизирует общие требования к лестничным конструкциям;
- ГОСТ Р 53254 2009 — определяет правила монтажа наружных пожарных лестниц, ограждений кровли;
- ГОСТ 25772 83 — обобщает требования по выполнению и монтажу ограждений на металлических лестницах, крышах и балконах;
- ГОСТ 26887 86 — выдвигает требования к площадкам, приставным и вертикальным лестницам.
Только после проверки соответствующих служб, разрешается эксплуатация лестницы.
Нормы ГОСТ 23120 78
Этот стандарт применяется к лестничным конструкциям, площадкам и ограждениям, которые используются при температуре внешней среды не ниже минус 65 градусов.
Общие требования стандарта определяют следующее:
- угол наклона лестничного пролета должен лежать в пределах от 45 до 60 градусов;
Угол наклона маршевых лестниц.
Размеры ограждений для лестниц.
Антискользящие настилы на ступенях лестницы.
Все крепления лестницы должны быть соединенны качественной сваркой.
Нормы ГОСТ Р 53254 – 2009
Этим нормативом закреплены требования к изготовлению, монтажу и допуску к эксплуатации эвакуационных, аварийных и пожарных конструкций. Этот стандарт применяется к стационарным и переносным конструкциям.
Пожарная лестница служит выходом при экстренной эвакуации.
Этот стандарт выдвигает следующие требования:
- лестница должна быть с глубиной проступи более 25 см, шириной ступени не менее 90 см, высотой ограждения от 1.2 м;при
- высотах более 20 метров применяются только маршевые конструкции, при высоте до 20 метров могут монтироваться вертикальные конструкции;
- расстояние между соседними пролетами должно быть более 0.75 см.
Пожарные лестницы обязательно должны быть покрыты антикорозийными покрытиями.
К вертикальным маршам выдвигается ряд индивидуальных требований:
- нижний пролет может быть выдвижным;
- не допускается нарушений целостности стен в местах монтажа лестниц;
Пожарная лестница должна быть прочно закреплена.
Размеры вертикальных пожарных лестниц.
Расчет пожарной лестницы.
Требования ГОСТ 26887-86
Этот стандарт выдвигает требования к вертикальным и наклонным лестницам. На основании этого документа, разрешено использовать марши, изготовленные из сплавов алюминия.
Указанным нормативным документом предусмотрены следующие требования:
- ширина марша в доме не должна быть меньше, чем 90 см;
Ширина лестничного марша.
Размеры ступеней лестницы.
Высота поручней лестницы.
Расчет маршевой лестницы.
Ограждения согласно ГОСТ 25772 83
Стандарт 25772 83 определяет наличие ограждения у лестниц, которые имеют более трех ступеней, на балконах, крышах, а так же нормативы для их монтажа.
Перила обеспечивают безопасный подъем по лестнице.
ГОСТ 25772 83 обобщает несколько нормативных документов и выдвигает общие требования:
- ограждения обязаны выдерживать нагрузку от 40 кгс во всех направления, прогиб при нагрузке должен составлять не более 5 см;
- опоры конструкций должны быть покрыты материалом, который имеет высокий коэффициент против скольжения;
- расстояние между левой и правой тетивой должно находиться в пределах от 45 до 80 см;
- шаг ступеней должен составлять от 30 до 34 см;
Формула расчета шага ступеней.
После установки дуговых поручней необходим сразу же проверить их на прочность.
ГОСТ 25772 83 устанавливает требования так же к заполнениям ограждений. Материал для изготовления металлических ограждений должен соответствовать СНиП. Монтаж их должен производиться в полном соответствии с ГОСТ 23118 и СНиП 3.03.01.
Требования к стационарным металлическим лестницам

Обеспечение пожарной безопасности любого объекта предполагает наличие специальных лестниц, по которым могут быстро эвакуироваться люди или попасть в горящие помещения члены пожарной бригады.
Пожарные стационарные металлические лестницы имеют определенную конструкцию, которая строго регламентируется Национальным Стандартом РФ «Техника пожарная. Лестницы пожарные наружные стационарные. Ограждения кровли» от 01.01.2010г., а также соответствующими ГОСТами.
Размеры лестниц обозначены в технических требованиях на их изготовление, а этапы установки и принципы размещения продиктованы ГОСТ 23118. Конструкции, предназначенные для вывода людей из здания, должны иметь следующие размеры: ширина ступеней – 0,25 м и более, высота ограждений площадок и маршей – 1,2 м и более, ширина самой лестницы – не менее 0,9 м.
Совет
Размеры лестничных маршей, площадок и их ограждений, вертикальных конструкций и их ограждений, а также основных их элементов приводятся в таблице 1 Национального Стандарта РФ и в приложениях А-Г.
Выход лестницы на кровлю должен иметь вид прямоугольной площадки длиной не меньше 0,8 м. Выход на кровлю здания с лестницы должен быть свободным и не может быть перекрытым ее ограждением.
Расстояние между поручнями ограждений лестничных маршей и между самими маршами должно составлять 75 мм и более.
Материал для изготовления и вид покрытия стационарной металлической лестницы указаны в ГОСТ 9.032. На данные конструкции должен быть нанесен слой грунтовки и краски класса 5 и выше.
Поверхность лестницы должна быть ровной и гладкой, без выступов и заусенцев. Виды сварных швов регламентируются ГОСТом 5264. Также на стационарной лестнице не может быть проявлений окисленного металла.
Конструкция должна быть надежной, прочной и жесткой, равно как и ее крепление к стене. Нельзя монтировать стационарную лестницу, если в стене есть трещины или имеют место разрывы металла в конструкции. Каждая ступень лестницы должна без проблем переносить вертикальный вес 1,8 кН.
Балка, площадка и лестничный марш лестницы должны выдерживать нагрузку, величина которой определяется по формулам, приведенным в вышеуказанном Национальном Стандарте РФ.
Перед вводом в эксплуатацию стационарные металлические лестницы подвергаются обязательным испытаниям, которые также проводятся не реже 1 раза в 5 лет. При этом исследуются такие параметры:
- целостность конструкции, состояние покрытия и т. д.;
- предельные отклонения форм и размеров;
- качество сварных швов;
- правильность выбора места для установки лестницы;
- прочность ступеней, крепежных балок, площадок и маршей лестницы;
- прочность лестничных ограждений.
Визуальный осмотр конструкции проводится не реже 1 раза в год.
Монтаж лестниц на металлических косоурах

Ремонтно-строительные работы
Монтаж лестниц на металлических косоурах
Состав операций и средства контроля
| Этапы работ | Контролируемые операции | Контроль (метод, объем) | Документация |
| Подготовительные работы | Проверить: — наличие документа о качестве на изделия;— соответствие размеров изделий проектным;— разметку проектных положений;— очистку опорных поверхностей ранее смонтированных конструкций от мусора, грязи, снега и наледи; | ВизуальныйИзмерительныйТо жеВизуальный | Паспорта (сертификаты), общий журнал работ |
| Монтаж лестниц на металлических косоурах | Контролировать: — соответствие отметок установки балок, уклонов косоуров проектным;— качество сварных соединений, заделки концов балок;— горизонтальность и вертикальность ступеней, высоту подступенков;— вертикальность решетки. | ИзмерительныйТехнический осмотрИзмерительныйВизуальный, измерительный | Общий журнал работ, журнал сварочных работ |
| Приемка выполненных работ | Проверить: — фактическое положение смонтированных косоуров и площадок (отклонение от разметки, определяющей проектное положение элементов на опорах);— качество сварочных соединений и антикоррозионных покрытий. | Измерительный, каждый элементТехнический осмотр | Исполнительная геодезическая схема, акт освидетельствования скрытых работ |
| Контрольно-измерительный инструмент: рулетка, линейка металлическая, нивелир, уровень, катетомер. | |||
| Операционный контроль осуществляют: мастер (прораб), геодезист — в процессе выполнения работ. Приемочный контроль осуществляют: работники службы качества, мастер (прораб), представители технадзора заказчика. |
Технические требования
Альбом 24-НТ-4 Ленжилпроекта
Допускаемые отклонения:
— высоты подступенка от проекта — ±3 мм;
— ширины проступи от проекта — ±5 мм;
— в просветах при наложении рейки длиной 2 м вдоль марша на свесы проступей — 4 мм;
— отклонения от горизонтали проступей — 2 мм;
— от горизонтали площадок лестниц — 5 мм;
— от вертикали подступенка — 3 мм;
— от вертикали металлических решеток — 3 мм;
— в расстояниях между элементами ограждений (стойками)
от проектных — 5 мм;
— зазоры между элементами поручня — 0,5 мм.
Опирание балок на стены под лестничные площадки должно быть не менее 250 мм с опорной пластиной размером 200 х 250 мм.
Требования к качеству применяемых материалов
ГОСТ 8717.0—84*. Ступени железобетонные и бетонные. Технические условия.
ГОСТ 23120—78. Лестницы маршевые, площадки и ограждения стальные. Технические условия.
Значения действительных отклонений геометрических параметров ступеней не должны превышать предельные:
— по длине ступени — ±5 мм;
— по высоте ступени — ±2 мм;
— по ширине ступени — ±3 мм.
Обратите внимание
Верхняя лицевая поверхность ступеней одной партии должна иметь одинаковый цвет и тон окраски. Маркировочные надписи и знаки должны быть нанесены на нелицевых поверхностях ступеней. Каждая партия ступеней должна сопровождаться документом о качестве. Ступени транспортируются и хранятся в контейнерах или пакетах. Каркасы ограждений лестниц должны изготовляться сварными.
Отклонения от проектных размеров элементов каркаса ограждений не должны превышать: — по высоте — 3 мм; — по длине — 5 мм; — по величине стрелки кривизны — 3 мм. Предприятие-изготовитель должно поставлять металлические ограждения окрашенными масляной краской за один раз (за исключением участков, подлежащих заделке в бетон).
Ограждения должны поставляться в виде укрупненных элементов (на марш, площадку) комплектно с крепежными деталями. Для выборочной проверки качества ограждений отбирают образцы в количестве 5% от партии, но не менее 5 штук. Отобранные образцы подвергают осмотру и обмеру. Ограждения должны храниться в штабелях высотой не более 1,5 м рассортированными по маркам.
Между элементами (пачками) ограждения должны быть проложены деревянные прокладки толщиной не менее 30 мм на расстоянии не более 1 м. Указания по производству работ СНиП 3.03.01-87 п. 3.
3 ЛЖП альбом 24-НТ-4 Ленжилпроекта Монтаж лестничных маршей и площадок разрешается производить толь¬ко после приемки опорных элементов, включающей геодезическую проверку соответствия их планового и высотного положения с составлением геодезической исполнительной схемы.
С целью обеспечения устойчивости лестничной клетки и связи ее с диском перекрытия монтаж лестничных конструкций разрешается производить только после полного заполнения смежных пролетов плитами перекрытия. Наименьшая высота ограждений лестничных маршей и площадок должна составлять: — в жилых зданиях — 850 мм; — в общественных зданиях — 900 мм; — в детских садах-яслях — 1350 мм.
Наибольшая величина просвета между элементами ограждений: — в жилых и общественных зданиях — 140 мм; — в детских садах-яслях— 100 мм. Укладку ступеней следует производить после приварки косоуров к пло¬щадочным балкам. Ступени укладывают, начиная с нижней фризовой. Ширина площадок должна быть не менее ширины марша и не менее 120 см, а площадок, на которые открываются двери лифта, — не менее 160 см.
Высота проходов под лестничными площадками и маршами должна быть в чистоте не менее 2 м.
Высота перил лестницы: стандарты по ГОСТ и СНиП

Стандартная высота перил лестницы по ГОСТ и СНиП
При проектировании подъема на этаж учитываются параметры ограждений, а именно высота перил лестниц, их размеры, особенности установки и материалов ГОСТ и СНиП. Хорошо продуманные ограждения, соответствующие стандартам, обеспечивают комфортное и безопасное передвижение как вверх, так и вниз по лестнице.
Составляющие элементы
Ограждения и перила – это важный элемент каждой лестничной конструкции. Их наличие считается обязательным для винтовой лестницы и прямых маршей с количеством ступеней более трех. Также их следует устанавливать на открытых площадках.
Главная задача ограждений – обеспечение безопасности передвижения по ступеням и площадкам. Они заграждают открытый пролет, служат опорой и обеспечивают ощущение комфорта при движении.
Кроме того, такое обрамление марша придает ему завершенный вид и создает особые декоративные формы, что также немаловажно.
Важно
Независимо от типа конструкции высота должна соответствовать общепринятым стандартам
Высота ограждения и лестничных перил может не совпадать. Все зависит от особенностей самой конструкции. Правила, по большей степени, диктуют не дизайнерский замысел и интерьер, а нормативные документы – ГОСТ и СНиП.
Чтобы лучше понимать их значение нужно разобраться в особенностях конструкции ограждений. Основными их элементами являются:
- опорная стойка;
- балясина;
- перила;
- внутреннее заполнение.
Дополнительно могут устанавливаться подбалясенники – планки для крепления промежуточных опор. Стеновые поручни состоят из опорной планки, ригеля или перила и крепления.
Используемые материалы
При установке ограждений важно учитывать не только параметры самой конструкции, но и особенности используемых материалов. В первую очередь это касается требований СНиП относительно пожаробезопасности. Ограждения не должны быть легко воспламеняемыми. Для этого используют либо огнеупорные материалы, либо вспомогательные пропитки. Особое внимание стоит уделять внутреннему заполнению.
Ограждения для лестницы могут изготавливаться из таких материалов:
- дерево;
- металл;
- пластик;
- комбинированные (в том числе со стеклом).
Стекло должно быть прочным, огнестойким, без трещин и сколов, а при повреждении не образовывать острых осколков.
«Классика жанра» — металлические перила
Для перил можно использовать те же материалы, что и для опорной части. При этом идеальным вариантом считается дерево. Важно, чтобы на поверхности не было сколов и заусениц, она должна быть идеально гладкой. Металлические перила не должны содержать ржавчины. Оптимальный вариант – нержавеющая сталь, в частности для вспомогательных ригельных поручней.
Требования к высоте
При проектировании лестничных конструкций важно соблюдать не только эстетические нормы, но и стандарты и нормативы ГОСТ и СНиП. Эти документы регламентируют рекомендуемые параметры конструкции в целом, в частности и ограждения.
Одним из самых важных показателей является высота. Она должна быть достаточной для того, чтобы человек не перевалился через перила, но и в то же время комфортной для их использования.
Минимально и максимально допустимые показатели высоты лестничных перил
Стандартной считается высота перил лестниц на уровне 90 см. Этот показатель не является случайным – он рассчитывается исходя из среднестатистических данных касательно роста человека.
Эта цифра учитывает требования безопасности и эргономики, поэтому считается оптимальной в большинстве случаев.
Если же в доме есть дети, необходимо дополнительно установить поручень с учетом их роста, обычно его высота составляет 50-70 см.
Другие важные аспекты
Помимо высоты перил и ограждений СНиП и ГОСТ устанавливают и прочие нормы. Учитывать их при проектировании также важно, в противном случае лестница не будет соответствовать общепринятым стандартам.
Важные параметры для проектирования ограждений лестницы:
- предельная нагрузка – 30 кг/м;
- толщина поручня – не менее 5 см в сечении;
- выступ поручня над ступенью – 30 см с плавным закруглением;
- расстояние от поручня до стены – 5-7 см;
- минимальная ширина лестницы для установки ограждения на ступенях – 80 см;
- расстояние между опорами – не более 100-120 см;
- расстояние между вспомогательными балясинами – не менее 10 см и не более 30 см;
- дополнительный поручень устанавливается при ширине марша более 2,5 м.
Прямые марши обязательно должны обустраиваться ограждениями с обеих сторон. Это правило неактуально в том случае, если лестница не слишком широкая и при этом прилегает с одной стороны к стене.
В таком случае требуется только одностороннее ограждение с внешнего торца. Если их ширина позволяет пройти двум людям, делается поручень возле стены.
Рекомендуется устанавливать непрерывные перила, если это возможно.
Возможные отклонения
Далеко не всегда правила, установленные ГОСТ и СНиП, соблюдаются в полном объеме. Это чревато повышением травмоопасности конструкции и снижает уровень удобства пользования маршем.
В некоторых случаях отклонения от установленных стандартов допускаются.
В первую очередь это касается конструкций в домах, где есть дети, а также люди с ограниченными физическими возможностями или нарушениями развития опорно-двигательного аппарата.
Так, допускается установка поручней на том уровне, который является безопасным и комфортным для конкретного человека. При этом важно соблюдать установленные соотношения между ростом и параметрами конструкции.
Для детей могут устанавливаться дополнительные поручни на уровне их роста
Совет
Еще один важный момент – высота самого ограждения. Занижать её смысла нет в любом случае, а вот сделать большей – это другое дело. Такое требование безопасности актуально для домов, где есть люди с психическими расстройствами. В таком случае высота заграждения лестницы может достигать 2 метров и выше.
При увеличении высоты конструкция становится более безопасной в каком-то плане, но менее удобной.
Лестницу можно считать безопасной только при соблюдении всех установленных норм. В частных строениях при самостоятельном выполнении работ это редко проверяется, поэтому вся ответственность лежит в первую очередь на хозяине жилища. Не стоит игнорировать правила, тогда конструкция будет не только безопасной, но и прочной.
http://vseolestnicah.ru
Все про промышленные лестницы для зданий

На современных предприятиях, в промышленных цехах заводов и фабрик достаточно часто используются металлические или железобетонные промышленные лестницы. Поскольку производственные здания являются зонами повышенной опасности, ко всем лестничным конструкциям предъявляются повышенные требования во время изготовления отдельных элементов, монтажа и эксплуатации.
Требования, которым должны отвечать лестницы промышленных зданий, регламентируются государственными и отраслевыми нормативными документами.
- Независимо от типа и места расположения все объекты, которые используются на производстве, должны соответствовать следующим нормам:
- ·Конструкции, которые используются для перемещения работников между этажами зданий, должны отвечать нормам ГОСТа для гражданских зданий и сооружений;
- ·Численность лестничных сооружений и ширина их маршей зависит от количества людей, занятых на производстве. Расчет параметров проводят, исходя из норматива 0,6 м на каждые 100 человек;
- ·Все лестничные марши и площадки должны быть снабжены оградами, поручнями и перилами согласно нормативным документам;
- ·На этапе проектирования учитываются все возможные нагрузки и габариты перемещаемых грузов для монтажа конструкций с запасом прочности;
- ·Элементы объектов перемещения изготавливаются с учетом условий их будущей эксплуатации (устойчивость к химической или биологической коррозии, повышенной температуре, высокой влажности воздуха и т.д.);
- ·Лестницы и площадки промышленных зданий не должны состоять из элементов, содержащих острые углы, кромки в местах стыков, незачищенные срезы и выступы, могущие привести к травмированию.
Материалы
Промышленные лестничные конструкции изготавливаются из металла или железобетона. Именно эти материалы наиболее соответствуют всем вышеуказанным требованиям. Выбор материала зависит от назначения объекта и места его эксплуатации.
Конструкции общего назначения, используемые для перемещения работников, изготавливаются преимущественно из железобетона (на следующем фото). Регламентирует железобетонные промышленные лестницы серия ИИ-65.
Типовой альбом содержит в себе необходимые для производства проектные чертежи маршей и площадок, соответствующие ГОСТ 9818-85.
Серия ИИ-65 (лестницы промышленных зданий) содержит описание шести типов лестничных клеток, а также марши для различной высоты этажей.
Остальные типы промышленных лестниц изготавливаются из металла. Выпускаются стальные, чугунные, алюминиевые конструкции, используются также определенные сплавы, обладающие устойчивостью к некоторым видам внешнего воздействия.
Основные лестничные конструкции
Назначение данных объектов — обеспечение перемещения штатного персонала между этажами в промышленных комплексах и производственных помещениях. По типу расположения данные конструкции делятся на встроенные и вынесенные за пределы сооружения.
Поскольку в чрезвычайных ситуациях основные лестницы могут быть использованы для эвакуации работников, они должны соответствовать всем требованиям к аварийным сооружениям.
Лестничные конструкции служебного назначения
Объекты служебного назначения монтируют с целью обеспечения свободного доступа к рабочему месту или оборудованию. Изготавливают их из металла (швеллера или уголка). В зависимости от места монтажа, стационарные изделия крепят к полу, стенам здания или оборудованию, как изображено на следующем фото.
Марши могут иметь ширину от 0,6 м до 1 м, устанавливаются с наклоном 45 градусов.
Для обслуживания оборудования используются также передвижные модели: различные типы стремянок и обычные прямые лестницы. Изготовление всех приставных и передвижных изделий регламентируется требованиями ГОСТ 26887-86. Для контроля их состояния проводятся регулярные проверки и испытания. Самовольное внесение изменений в конструкцию запрещено.
Металлические лестницы промышленные служебного назначения достаточно часто применяются для перемещения груза, различных деталей, материалов, инструментов. В связи с этим данные объекты в обязательном порядке должны быть оборудованы необходимыми ограждениями, отличаться повышенной прочностью, обеспечивать безопасное и удобное перемещение.
Пожарные промышленные лестничные сооружения
Все здания, высота которых превышает 10 м, согласно требованиям ГОСТа должны быть оборудованы металлическими пожарными лестницами. Их предназначение – обеспечить свободный доступ спасателям или пожарным в аварийное помещение, осуществить доставку необходимого оборудования для ликвидации последствий аварии, пожара или техногенной катастрофы.
В зданиях, имеющих большую площадь, пожарные лестницы располагают через каждые 200 м периметра. К стене металлическую конструкцию крепят при помощи стальных анкеров.
Каждые пять лет специальными сертифицированными организациями проводится обязательная проверка пожарной лестницы, по результатам которой изделие получает допуск на дальнейшую эксплуатацию.
Аварийные промышленные лестницы
В зданиях промышленного назначения, состоящих из двух и более этажей, аварийные лестницы монтируют для эвакуации рабочих и служащих во время чрезвычайных ситуаций. Марши располагаются снаружи, а площадки сообщаются с помещением в местах аварийных выходов или через балконы.
По нормам ширина марша должна составлять 0,7 м, его уклон – 45 градусов, а высота поручней – 0,8 м. Для изготовления данных объектов используется сталь, в некоторых случаях – железобетон. Устойчивость сооружения обеспечивается балками или колоннами.
К зданию лестницу крепят при помощи анкеров или кронштейнов.
Лестницы из металла гост — По ступенькам

Лестница является важным средством вертикальной коммуникации. Существует огромное количество вариантов исполнения. В многоквартирных жилых домах, производственных, общественных и административных зданиях чаще всего монтируются железобетонные марши, так как они лучше всего удовлетворяют требованиям пожарной безопасности.
При проектировании частного дома открывается широкий простор для фантазии, который ограничивается лишь желаниями и возможностями будущего владельца.
Формы лестниц
Выбранная форма лестницы во многом зависит от назначения, месторасположения, высоты помещения и архитектурных особенностей здания.
Одномаршевая лестница
Самый простой тип. Применяется достаточно редко, так как не подходит для помещений нормальной высоты: по расчёту количество ступеней получается слишком большим. Иногда лестницы такой формы выполняются с промежуточной площадкой;
Двухмаршевая лестница
Самый распространённый вид. Может выполняться как привычной формы, так и Г-образной. Очень удобна, потому что позволяет сократить количество ступеней в одном марше, но занимает большую площадь;
Винтовые и криволинейные лестницы
Обратите внимание
Помогают сэкономить полезную площадь, но могут нести повышенную опасность для детей и пожилых людей;
Комбинированные лестницы
Одновременно имеют как марши, так и изгибы и скругления. Позволяют, сохраняя удобство эксплуатации, создавать уникальные интерьеры.
Нормы и стандарты проектирования лестниц.
Лестница должна удовлетворять выполнять следующие функции:
- Обеспечивать удобную и безопасную вертикальную коммуникацию;
- Обеспечивать эвакуацию людей в случае аварийных ситуаций;
- Удовлетворять эстетическим и экономическим требованиям.
Безопасная эксплуатация лестницы зависит от того, насколько правильно она запроектирована. Все нормы проектирования прописаны в СНИП (Строительные нормы и правила).
Нормативный документ регламентирует следующие параметры лестниц и ступеней:
- Наименьшая и наибольшая ширина лестничного марша.Если лестница выполняет функцию эвакуационного пути, ведущего с одного этажа жилого здания (двухэтажное строение), её ширина должна составлять не менее 90 см, при большей этажности — 105 см. Для внутриквартирных лестниц ширина марша может быть всего лишь 80 см. Максимальный размер — 140 см. Для общественных и административных зданий ширина лестницы должна быть от 135 до 240 сантиметров.
- Габариты лестничных площадок.Лестницы с большим количеством ступеней должны быть оборудованы промежуточными площадками. Ширина лестничной площадки по требованиям эвакуации должна равняться ширине марша, но не меньше 1.2 метра. Если площадь здания позволяет, ширина площадки может быть больше ширины марша лестницы.
Длина лестничной площадки должна быть равна ширине двух маршей при двухмаршевой лестнице плюс просвет 10 см. Просвет необходим, чтобы была возможность протянуть пожарный гидрант. Если лестница одномаршевая, промежуточная площадка не расширяется, а остаётся равной ширине марша. - Наименьшая и наибольшая высота ступеней.Все ступени должны быть одинаковых размеров. Исключение составляют первая и последняя ступень. При невозможности вписать целое количество, можно сделать их чуть ниже остальных. Наименьшая высота подступенка 12 см, максимальная 20 см для внутриквартирных лестниц и 19 см для многоквартирных зданий.
- Уклон лестницы.Угол наклона лестницы должен быть от 26 до 45 градусов. Основные лестницы жилых многоквартирных и общественных зданий должны иметь уклон 1:2. Вспомогательные и ведущие в подвал лестницы могут располагаться под углом 33 — 36 градусов.
- Минимальное и максимальное количество ступеней в одном марше.
Количество ступеней марша должно быть не менее 3 и не более 16. При количестве ступеней меньше трёх целесообразно устраивать пандусы.
Нормы эвакуации
На путях эвакуации в зданиях не следует устанавливать винтовые лестницы и забежные ступени. Такой вариант возможен только при возведении внутриквартирной лестницы или лестницы в частном доме.
Ширина проступи и высота подступенка в пределах марша и лестничной клетки должны быть постоянны, чтобы не сбивать человека с шага и не замедлять эвакуацию.
В жилых и общественных зданиях для безопасной эвакуации в случае аварийной ситуации лестничная клетка должна иметь естественное освещение. В частном доме также не стоит забывать об освещении, но оно может быть и искусственным.
Ширина марша лестницы, находящейся на путях эвакуации, должна быть не менее 1.2 м для зданий, в которых на одном этаже, кроме первого, находится более 200 человек.
В детских и дошкольных учреждениях, домах престарелых и больницах ширина лестницы должна составлять не менее1.35 м.
Для всех остальных случаев минимальная ширина марша — 0,9 м.
Лестницы, ведущие к одиночным рабочим местам, могут быть шириной 0.7 м.
В зданиях высотой более 28 метров (примерно 10 этажей) следует предусматривать незадымляемые лестничные клетки.
Эргономические требования
Лестница — конструкция повышенной опасности. Чтобы человек не подвергался излишним рискам, она должна быть максимально удобной.
На лестницах, в которых меньше трёх ступеней, легко оступиться, а при количестве ступеней свыше шестнадцати подъём становится слишком утомительным.
Для вычисления максимально удобного соотношения ширины проступи и высоты подступенка используют среднюю длину шага взрослого человека, которая составляет приблизительно 60 — 64 сантиметра. Отсюда вывели формулу:
2 * высота подступенка + ширина проступи = 64 см
Также существует формула, по которой сумма двух слагаемых должна быть в пределах 43 — 47 сантиметров. Соблюдение этой пропорции гарантирует безопасность, а для удобства стоит придерживаться правила:
ширина проступи — высота подступенка = 12 см
Кроме того, ширина проступи должна быть такой, чтобы взрослый человек без проблем смог опереться на неё ногой.Оптимальным станет размер 30 сантиметров. При меньшей ширине проступи по лестнице будет трудно спускаться, а большая ширина станет сбивать с шага.
Для ширины проступи 30 сантиметров высота подступенка должна быть 15. Это значит, что уклон лестницы равняется 1:2 или 27 градусов.
Разновидности ступеней
Существует несколько видов классификации ступеней.
По форме в плане ступени подразделяют на:
- рядовые, имеющие в плане прямоугольную форму. Такие ступени используются в маршевых лестницах;
- забежные, сложной формы, позволяют создавать винтовые и криволинейные лестницы.
Сочетания рядовых и забежных ступеней образуют комбинированные лестницы.
Второй вид классификации — по наличию подступенка. Подступенок — это вертикальная плоскость ступени. Горизонтальную поверхность, на которую опирается нога во время подъёма, называют проступью.
Существуют три типа ступеней:
- открытые без подступенка. наиболее распространенные лестницы с такой ступенью выполняются из дерева и металла;
- закрытые с подступенком. Такие ступени можно встретить на любой лестничной клетке многоквартирного дома;
- полузакрытые. Подступенок такой ступени лишь частично закрывает просвет между проступями.
Размеры ступеней
Как уже говорилось, самым лучшим сочетанием будет высота подступенка 15, а ширина проступи 30 сантиметров. Нормативные документы разрешают использование ступеней с другими размерами, удовлетворяющими условию безопасной эксплуатации.
Удобнее всего использовать ступени со стандартными размерами. Это значительно удешевит конструкцию и облегчит монтаж. Нестандартные ступени стоит рассматривать только в тех случаях, когда типовые материалы абсолютно неприменимы.
При выполнении лестницы из железобетона можно выбрать уже известные размеры ступени или ступени с высотой 17, а шириной 26 сантиметров. Среди специалистов такие ступени называются «подвальными». Они менее удобны из-за большей высоты, но более компактны. Железобетонные ступени производятся по серии и имеют стандартную длину.
Ступени шириной 30 сантиметров выпускаются длиной 0.9, 1.05, 1.2, 1.35, 1.5, 1.65 и 2.25 метра. Подвальные ступени могут быть длиной 0.9, 1.05 или 1.2 метра.
Заводы ЖБИ могут выпустить изделия по размерам заказчика, но это будет очень дорого стоить.
При выполнении лестницы из дерева или металла, намного проще отойти от гостовских размеров.
Ограничить размеры деревянных ступеней могут только размеры сырья. Большинство производителей могут выполнить ступени длинной от 90 см до 5 м. Ширина изделия может быть в переделах от 20 см до 2 м. Шаг размеров в плане 10 см. Толщина доски предлагается 2, 3 или 4 см.
Выполнение замеров и конструирование
Лестница — конструктивный элемент здания, но при возведении частных домов о ней задумываются, чаще всего, только после окончания общестроительных работ.
Для того, чтобы смонтировать лестницу в уже готовый каркас здания, понадобится провести следующие мероприятия:
- Выполнить обмерные работы;
- Подобрать размеры проступи и подступенка, ширину лестницы;
- Сделать эскиз.
Обмерные работы включают в себя:
- проверить горизонтальность перекрытий с помощью уровня;
- проверить перпендикулярность стен с помощью угольника;
- выяснить высоту помещения и толщину перекрытия с помощью рулетки или дальномера;
- измерить основные размеры в плане, необходимые для построения чертежа (длина и ширина помещения, привязка будущей лестницы к стенам).
Для выполнения измерений необходимо иметь:
- рулетку или дальномер;
- угольник;
- строительный уровень.
При использовании рулетки понадобится дополнительная пара рук, измерения с помощью дальномера можно выполнять в одиночку.
Чтобы без проблем вписать лестницу со стандартными размерами? высота этажа должна быть кратна 0,15 метра. Чаще всего в жилых зданиях она составляет 2.7, 3.0 или 3.3 метра. Высота этажа — это сумма высоты помещения в чистоте и толщины перекрытия, иными словами, расстояние от пола одного этажа, до пола следующего.
Рассчитать количество ступеней очень просто, нужно высоту помещения разделить на высоту подступенка. Получившееся число необходимо округлить в большую сторону, это значит, что если получилось, например число 18.7, то количество ступеней лестницы будет равным 19.
При устройстве стандартной маршевой лестницы получившееся количество ступеней следует разделить на два марша, необязательно одинаковых. Главное, чтобы количество ступеней в одном марше не было меньше трёх и больше шестнадцати.
Например, принято решение использовать ступени шириной 30 см и высотой 15 см. Ширина двухмаршевой лестницы принимается 90 см. Так для высоты помещения 2.7 м и толщины стандартного перекрытия из железобетонных плит с цементно-песчаной стяжкой 0.3 м получится такой расчёт:
- (2.7+0.3):0.15=20 шт. — всего ступеней;
- 20:2=10 шт. — ступеней в одном марше;
- 10*0.3=3 м — длина одного лестничного марша;
- 3+0.9 = 3.9 м — длина всей лестницы с учётом минимальной ширины площадки;
- 0.9*2=1.8 м — ширина лестницы.
При проектировании лестницы в жилых многоквартирных зданиях нормы пожарной безопасности требуют устройства зазора между лестничными маршами не менее 10 см, это значит, что к получившейся ширине лестницы нужно добавить еще 0.1 м.
Результатом работы должен стать чертеж с изображением будущей лестницы в плане и в разрезе. Такой эскиз можно выполнить вручную на миллиметровой бумаге.
Выполнить проект лестницы для частного дома самостоятельно вполне посильная задача.
Для этого потребуется выполнить несколько несложных задач:
- Определиться с материалом лестницы;
- Выбрать размеры ступеней;
- Выполнить необходимые замеры;
- Рассчитать габариты конструкции;
- Нарисовать эскиз.
Конструирование лестницы для общественного или многоквартирного жилого здания более сложная задача, которая должна выполняться на стадии проектирования всего дома, поэтому лучше доверить такую работу профессионалам.















































