Каркасная баня своими руками – проекты, чертежи и пошаговая инструкция по строительству

Баня и сауна
10.07.2017
5.7 тыс.
3.8 тыс.
9 мин.
Быстро и недорого возвести баню можно только одним способом – каркасным. Если соблюдать основные правила, то постройка ничем не будет уступать кирпичным и брусовым аналогам.
Работу над баней начинаем с проектирования. На данном этапе необходимо определиться с размерами и конфигурацией будущего строения. Если требования у вас минимальные, можно построить баню 3х4 м.
В ней хватит места для парилки на несколько человек площадью 6 м2. Оставшееся пространство можно отвести под комнату отдыха. Если комнатой отдыха пожертвовать, то места хватит для раздевалки и тамбура.
А если оборудовать такую баню мансардным этажом, то не придется отказываться и от комнаты отдыха.
Проектирование бани
Если баня будет использоваться как место времяпрепровождения в компании друзей, лучше сделать ее побольше, к примеру, 6х4. В таком случае вы сможете обустроить в ней достаточно просторную комнату отдыха площадью около 14 м2, а также парную на 5м2 и небольшой санузел.
А если сделать баню 4×6 с мансардой, то на первом этаже может разместиться парная и моечная, а также комната отдыха и терраса. Весь мансардный этаж, а это около 20 м2, может быть отведен под комнату отдыха.
Если размеры вашего участка позволяют, и бюджет сильно не ограничен, сделайте мансардную баню размером 6х6 м, чтобы ни в чем себе не отказывать. В ней найдется место для всех необходимых помещений, а также для террасы и просторного балкона.
Большие парилки гораздо сложней протопить до необходимой температуры и затем поддерживать температурный режим на одном уровне. Поэтому, если в большой парной потребности нет, целесообразней отвести под ее не более 4-5 м2. Это позволит сэкономить топливо и время на разогрев помещения.
Чтобы не ломать голову над планировкой, вы можете взять за основу готовые проекты, предложенные на нашем сайте. При необходимости подкорректируйте планировку по своему желанию. Когда план будет готов, обязательно составьте чертеж-схему каркаса стен и крыши.
Каркас стен достаточно простой – его основой служат стойки, которые располагаются с шагом 600 мм, если мерить от центров, или 575 мм, если мерить между стойками.
Сверху и снизу стойки соединяются обвязкой – горизонтально расположенным брусом или доской. В углах стойки укрепляются раскосами. Над дверными проемами, а также над и под оконными проемами располагаются горизонтальные перемычки.
Балки перекрытия рассчитываются и укладываются также, как и при строительстве обычных домов.
Имея перед собой такой чертеж, вы не допустите ошибок в процессе сборки конструкции. Кроме того, он позволит заранее посчитать необходимое количество пиломатериалов.
Так как каркасная баня имеет небольшой вес, для нее в большинстве случаев вполне достаточно столбчатого мелкозаглубленного фундамента, при условии, что грунт устойчивый.
На неустойчивых грунтах лучше выполнить свайно-винтовой фундамент. Если вы планируете выполнить под баней погреб или обустроить другие помещения, то понадобится ленточный фундамент.
В остальных случаях лучше от него отказаться, так как строительство такого основания очень затратное и трудоемкое.
Вне зависимости от того, какой фундамент вы собрались строить, предварительно подготовьте площадку – прежде всего ее нужно правильно очертить. Обязательно убедитесь, что диагонали площадки имеют одинаковую длину. Затем избавьтесь от растительного слоя. Чтобы в дальнейшем под баней не прорастали растения, обработайте почву фунгицидами.
Теперь можно приступать к строительству самого фундамента. Если основание будет столбчатым, вам понадобятся такие материалы:
- песок;
- щебень;
- цементный раствор;
- бетонные фундаментные блоки (можно заменить кирпичом);
- битумная мастика;
- рубероид;
- брус 150х150 мм.
После подготовки материалов разметьте участок под столбики, которые должны располагаться с шагом 1,5–2 м. Затем выкопайте ямы на глубину около 40 см. Дно ям засыпьте щебнем и песком толщиной по 10 см. Каждый слой тщательно утрамбуйте. Поверхность насыпи выровняйте в горизонтальной плоскости.
Столбчатый фундамент бани
В ямы уложите два бетонных блока, затем нанесите раствор и сверху уложите еще два блока с перевязкой. В процессе укладки блоков следите, чтобы столбы были установлены строго вертикально. Затем сверху обработайте блоки битумной мастикой и положите пару слоев рубероида.
После этого нужно выполнить ростверк, т.е. уложить по периметру фундамента брус и скрепить его между собой. В процессе укладки следите, чтобы углы ростверка равнялись 90 градусам. Угловое соединение бруса ростверка желательно выполнить “в лапу” или хотя бы “в полдерева”. Затем нужно уложить на столбики балки перекрытия и врезать их в ростверк.
Свайно-винтовой фундамент выполняется еще проще – в грунт вкручиваются сваи по принципу обычного бура. Уровень их заглубления должен составлять не менее двух метров. В процессе заглубления нужно следить, чтобы сваи располагались вертикально.
Затем верх свай обрезается так, чтобы края находились на одном горизонтальном уровне. После этого к сваям приваривается ростверк, который выполняется обычно из двутавровых балок. Эти же балки используются и для перекрытия.
На металлических балках нужно закрепить брус 150х150 мм при помощи болтов. Он будет служить обвязкой для стоек каркаса.
Для строительства каркаса стен понадобятся следующие пиломатериалы:
- брус 150х150 мм;
- брус 100х150 мм;
- доска 150х40 мм;
- стальные уголки;
- деревянные нагеля.
Все пиломатериалы обязательно обработайте антисептическими пропитками. Они защитят дерево от негативных биологических воздействий, а также сделают его более устойчивым к влаге.
Работа начинается с установки стоек по углам строения, которые выполняются из бруса 150х150 мм. В торце каждой стойки просверлите отверстие под нагеля глубиной 80-100 мм. Такие же отверстия сделайте в ростверке по углам строения. Затем забейте в ростверк сами нагеля и насадите на них стойки. Дополнительно укрепите стойки стальными уголками и саморезами.
Затем стойки необходимо укрепить раскосами, как показано на схеме выше. Для изготовления раскосов используйте доски 150х40 мм. Торцы раскосов обрежьте под углом, которым они будут примыкать к обвязке и стойкам. Для фиксации досок воспользуйтесь саморезами и уголками.
Собираем каркас
Далее установите промежуточные стойки стен с шагом 600 мм, выполненные из доски 150х40 мм. Для крепления стоек используйте стальные уголки, которые должны располагаться с двух сторон раскоса.
Кроме того, соедините промежуточные стойки друг с другом, а также с угловыми стойками при помощи перемычек, выполненных из таких же досок. Перемычки располагайте в шахматном порядке, т.е.
на разном уровне.
Сверху свяжите все стойки обвязкой, которая выполняется из бруса 100х150 мм, она же будет служить мауэрлатом для кровли. Затем установите горизонтальные планки над и под проемами. Для планок используйте такую же доску, как и для стоек.
Затем по такому же принципу установите стойки межкомнатных перегородок – сверху и снизу соедините их обвязкой, а также укрепите раскосами и перемычками. На этом возведение каркаса завершено.
Теперь нужно уложить балки перекрытия, в качестве которых можно использовать брус 100х150 мм. Проставьте их кромкой на обвязку и закрепите уголками. Шаг балок должен соответствовать шагу стропил – это обычно 900–1000 мм.
В качестве примера рассмотрим, как построить мансардную крышу, так как она позволяет при минимальном увеличении финансовых затрат получить практически полноценный второй этаж. Если вас интересует строительство двускатной крыши или вальмовой (шатровой), ознакомьтесь с другими статьями на нашем портале.
Для мансардной кровли понадобятся следующие материалы:
- брус 100х150 мм для стоек;
- доски 150х50 мм для стропил;
- доски 150х20 мм;
- рейки;
- супердиффузная мембрана;
- кровельный материал.
Работа начинается с установки опорной конструкции. Для каждой стропильной фермы устанавливаются две стойки, которые сверху соединены балками. Т.е. под каждой стропильной фермой располагается П-образная несущая конструкция.
При монтаже опорной конструкции необходимо правильно определить положение стоек.
Так как стойка с нижним стропилом и мауэрлатом (балкой перекрытия) образует прямоугольник, расстояние от стены до стойки зависит от высоты мансарды и угла наклона нижнего стропила.
Зная угол наклона стропила и высоту стойки (определяет высоту мансардного помещения), вы можете рассчитать на каком расстоянии от края устанавливается стойка по теореме Пифагора, т.е. вам необходимо узнать длину меньшего катета.
Каркас для крыши бани
Стойки закрепите на обвязке и балках перекрытия саморезами и уголками. Кроме того, укрепите их раскосами. Затем соедините обе стойки балками. По такому принципу установите П-образные детали на всех балках перекрытия. Все получившиеся несущие элементы соедините по краям прогонами, как показано на схеме выше.
Теперь можно установить нижние стропила. Снизу они зарезаются и крепятся к обвязке, а сверху – к прогону, в котором предварительно пропиливаются пазы. Далее нужно закрепить стойки по центру перемычек П-образных деталей. Высота стоек определяет угол наклона верхний стропил. Все стойки свяжите коньковым прогоном.
В завершение работы над каркасом мансарды установите верхние стропила, которые опираются на нижний и коньковый прогоны. Предварительно в прогонах пропилите пазы под стропила.
Сразу же выполните гидроизоляцию крыши – закрепите на стропилах супердиффузную мембрану степлером. Поверх скоб наклейте специальную самоклеящуюся ленту, которая обеспечит герметичность соединения.
Учтите, что полотна мембраны должны перекрывать друг друга сантиметров на 20–25.
Поверх стропил обязательно закрепите рейки, которые будут служить контробрешеткой. Затем перпендикулярно рейкам закрепите доски 150х20 мм. Что касается шага обрешетки, то придерживайтесь рекомендаций производителя кровельного материала, который вы приобрели для бани.
Поверх обрешетки монтируется кровельное покрытие по стандартной схеме – листы материала обязательно должны перекрывать друг друга вдоль и поперек. Шурупы или гвозди располагаются на гребне волны.
Для утепления стен вам понадобится:
- базальтовая вата толщиной 150 мм и плотностью 25-35 кг/м3;
- пароизоляционная пленка;
- влаго-ветрозащитная мембрана (супердиффузная);
- деревянные рейки.
Для пароизоляции парной целесообразней использовать фольгированный пароизоляционный материал. Он не только защитит конструкцию от влаги, но и будет отражать тепло внутрь помещения.
Утепление начнем с пароизоляции стен изнутри. Для этого наклейте на стойки самоклеящуюся двухстороннюю уплотнительную ленту. Затем к ленте приклейте гидроизоляционную пленку.
Обязательно расположите полотна с нахлестом не менее 15 сантиметров. Стыки проклейте двухсторонней уплотнительной лентой. Дополнительно зафиксируйте пенку степлером.
В итоге должен получиться абсолютно герметичный контур, иначе влага будет проникать внутрь стен и каркас быстро придет в негодность.
Утепление стен бани
Затем в пространство каркаса уложите плиты минеральной ваты. Следите, чтобы утеплитель плотно прилегал к элементам конструкции и друг к другу. Все образовавшиеся щели тщательно забейте обрезками ваты.
Далее нужно закрепить влаго-ветрозащитную мембрану с наружной стороны стен.
Она монтируется по тому же принципу, что и пароизоляция – на стойки наклеивается уплотнитель, затем крепится сама мембрана при помощи степлера.
Поверх пленки на стойках обязательно надо закрепить рейки толщиной не менее 20 мм. Такие же рейки набейте на стойки с внутренней стороны стен, они будут служить обрешеткой для вагонки.
По такой же технологии выполняется утепление крыши – между стропил укладывается минвата, затем закрывается изнутри пароизояцией. Поверх пароизоляции монтируется обрешетка для вагонки или других отделочных материалов.
Пол утепляется несколько иначе – прежде всего нужно выполнить черновой настил между балок перекрытия из досок. Затем на балки и настил укладывается гидроизоляционная пленка (можно использовать обычную пароизоляцию). Поверх пленки укладываются лаги как при монтаже обычного пола.
В пространство между лагами кладется утеплитель. Можно использовать любой материал, как плитный, так и сыпучий, такой как эковата или керамзит. Поверх лаг стелется еще один слой пленки и затем выполняется настил из досок.
Чтобы утеплить перекрытие, со стороны первого этажа закрепите пароизоляцию, после чего сделайте из досок черновой потолок. Затем со стороны второго этажа нужно заполнить пространство между балок утеплителем. Сверху на балки укладывается пароизоляция и настил из досок.
Для обшивки стен с наружной стороны лучше всего использовать OSB-4 толщиной 12-15 мм. Листы нужно нарезать так, чтобы края ложились на стойку. Висящих краев быть не должно. В местах расположения оконных и дверных проемов необходимо сделать вырезы, воспользовавшись электролобзиком или ножовкой.
Для крепления листов используйте фосфатированные саморезы длиной 60-70 мм. Расстояние от края листа до шурупа должно составлять 10 мм. Шаг крепежей по краям не должен превышать 150 мм. По центру листов шаг шурупов можно увеличить до 300 мм.
Обшивка стен
Между краями листов обязательно обеспечьте расстояние около 5 мм, т.е. так называемый деформационный шов. Если его не сделать, листы обшивки могут деформироваться в результате температурного расширения. Все швы нужно заполнить монтажной пеной.
Точно также обшейте фронтоны строения. Затем стены можно отделать любыми “сухими” фасадными отделочными материалами, такими как вагонка, сайдинг, термопанели и т.д. С внутренней стороны обшейте стены вагонкой.
Если вы не знаете, как крепить к стене вагонку, прочитайте статью, посвященную данной теме.
Вот и все основные моменты каркасного строительства. Даже если вы новичок, возвести коробку небольшой бани вы сможете за одну-две недели.
Как построить каркасную баню своими руками — пошаговая инструкция с фото, видео и чертежами

О пользе и удовольствии, которые приносят банные процедуры, знает каждый владелец пригородного участка. Именно поэтому многие стремятся к тому, чтобы у них было это сооружение в собственном пользовании.
Но не у всех есть возможность, время и финансы, чтобы возвести данную конструкцию из кирпича или оцилиндрованных брёвен. Выходом будет строительство каркасной бани своими руками.
Если грамотно подойти к вопросам утепления и гидроизоляции, то она будет служить очень долго.
Таблица: преимущества и недостатки каркасной бани
Составление проекта постройки и выбор материалов
Любое строительство начинается с планирования и закупки материалов. Чтобы приступить к покупкам, нужно разработать план.
При желании можно воспользоваться готовым планом
Для составления чертежа нужно:
- определиться с местом;
- изучить грунт в этом месте, поскольку он влияет на выбор фундамента;
- определить для себя, какая конструкция будет для вас оптимальной.
Включите в свой проект стандартные банные помещения: предбанник, тамбур, душевую и парильную комнату. Месторасположение печки тоже должно быть указано на схематическом изображении бани.
На этапе проектирования определитесь с размерами каждого из помещений, укажите их на схеме. Учитывайте при этом то, какое количество человек одновременно будет находиться в парной. В ней не должно быть слишком тесно, но и чересчур большую баню будет сложно прогреть.
Оптимальной парная считается с размерами 2400х2000 мм при высоте потолка 2200 мм.
Часто любители попариться составляют проекты с дополнительными помещениями: комнатой отдыха, бильярдной, бассейном и т. д. Санузел в бане принесёт дополнительные удобства во время принятия банных процедур.
Банный комплекс можно дополнить санузлом
Если ответственно подойти к такому этапу, как проектирование, то впоследствии будет гораздо проще при строительстве.
Как только проект готов, можно рассчитать количество материала для строительства. При необходимости эти данные вписываются в сам проект.
Видео: как составить чертёж каркасной бани для дачи
Технология строительства фундамента своими руками
Для каркасной бани можно использовать любой тип фундамента.
Свайный
Очень прост в возведении, надёжен. Используется для небольших и лёгких конструкций. Обрёл свою популярность благодаря дешевизне и быстровозводимости.
При выборе фундаменты важными параметрами являются глубина промерзания почвы и залегания грунтовых вод. Сваи должны ставиться глубже этого уровня.
Помимо этого, для большей надёжности максимально сократите расстояние между точками опоры. Готовьтесь к тому, что придётся копать глубоко.
Есть определённые тонкости использования свайного фундамента:
- Лучше всего такой вид фундамента подходит для нестабильного грунта (песок, торфяник). В этом случае опоры закапываются в почву на ту глубину, где есть твёрдая стабильная опора. Таким образов вес сооружения будет приходиться на хороший грунт.
- Там, где почва промерзает ниже 1500 см, сваи — отличный вариант основы.
- Если поверхность грунта неровная и сильно бугристая, то конструкция на столбчатом основании также станет единственным выходом. В этом случае не придётся выполнять большое количество работ по выравниванию участка.
- Ещё один тип грунта, идеальный для применения свайного фундамента — плотный. Для того чтобы вырыть траншею или котлован в нём, придётся приложить немало усилий. А скважины для свай пробурить гораздо проще.
Таблица: виды свай
Фотогалерея: типы свай
Буронабивные сваи чаще всего используются при строительстве баниВинтовые металлические сваи можно монтировать самостоятельноЗабивные железобетонные сваи не подходят для бани
Расположение и размеры свай
Ключевые места для расположения свай — это углы здания, места, где наружная стена соединяется с простенком и, конечно же, необходимо устанавливать промежуточные столбы по длине стен. Расстояние между опорами должно быть не менее 2 м, чтобы не нарушалась несущая способность основания.
Места расположения столбов свайного фундамента строго предопределены
Чтобы понять какой длины нужны столбы, нужно знать:
- на какую глубину промерзает почва;
- на какой глубине начинается надёжный не плавучий грунт.
Уровень промерзания для определённого региона практически неизменный. А вот, чтобы разобраться с состоянием почвы, на помощь придёт пробное бурение, которое всё покажет.
Пошаговая инструкция возведения свай из кирпича
Бутовый камень или кирпичи также часто используют для создания фундамента. Их фиксируют друг с другом бетонным раствором. Располагать такие столбы стоит по той же технологии, что и сваи.
Это касается и расстояний между ними. Угловыми столбы делаются квадратными (380х380 мм), а промежуточные прямоугольными (380х250 мм).
Они должны возвышаться над почвой на 300–400 мм и уходить в глубину на 250–300 мм.
Столбчатый фундамент можно сделать из кирпичей
Вся работа по сооружению фундамента проходит в несколько этапов:
- Выровняйте и расчистите участок.
- Отметьте места, где будут стоять столбы.
- Пробурите отверстия необходимой глубины. Дно гидроизолируйте.
- Бетон заливайте постепенно, трубу после этого достайте максимально аккуратно.
Процесс формирования сваи нужно тщательно контролировать
- Когда труба достигнет отметки 200–300 мм, зафиксируйте её, дождитесь пока бетонная смесь хорошо затвердеет, армируйте.
- Как только основание бетона застыло, можно заполнить трубу цементным раствором до конца.
- Сформируйте ростверк, используя крепкий брус.
Ленточный фундамент
Это наиболее распространённый вариант основания. Причём не только для строительства бани. Свою популярность он обрёл благодаря лёгкости возведения. Идеально подходит для несыпучих неподвижных грунтов, с глубоким залеганием грунтовых вод.
Ленточный фундамент легко возводится своими руками
Для строительства бани его не нужно слишком заглублять, особенно если почва не сильно промерзает.
Выполните действия в следующей последовательности:
- Хорошо расчистите участок, где будет строиться баня, и близлежащую территорию. Максимально выровняйте площадку.
- Начните разметку внутреннего контура ленты фундамента. Вбейте 2 колышка в землю и натяните между ними верёвку.
- С помощью строительного угольника отмерьте углы в 90 градусов от уже поставленных колышков и, используя рулетку, отмерьте расстояние до следующих.
- Натяните верёвки между колышками.
- Сделайте внешний контур по тому же принципу. Между верёвками должно быть расстояние в 100 мм. Это ширина будущих стен конструкции.
Разметка ленточного фундамента
- Выкопайте траншею по разметке. Глубина зависит от того, насколько промерзает почва. Она должна быть глубже на 200 мм этого уровня. Утрамбуйте дно траншеи.
- Сделайте песчано-щебневую подушку толщиной 100–200 мм. Когда засыпаете песок, смачивайте его водой и утрамбовывайте. Это нужно проделать несколько раз. Поверх песка засыпается щебень. Снова всё утрамбовывается и ровняется.
- Сделайте опалубку, используя обрезную доску. Она должна возвышаться над землёй на 300 мм и более.
- Оберните опалубку полиэтиленом, крепя его скобами степлера. Это предотвратит вытекание бетона.
Полиэтилен предотвратит вытекание бетона
- Положите армированную сетку для придания дополнительной жёсткости и прочности фундаменту.
- Залейте бетонный раствор.
Формирование конструкции пола и его теплоизоляция
Увеличить срок службы бани можно, если соблюсти подробную инструкцию по монтажу пола. Это позволит избежать утечек тепла и гниения половых досок, а также минуть других неприятных последствий.
Для монтажа бани следуйте следующей инструкции:
- К нижним лагам пола во всех помещениях бани, кроме душевой, необходимо приделать бруски сечением 50х50 мм.
- На них застелите черновой пол из досок.
- Затем уложите слой гидроизоляции, например, рубероид.
- Теперь можно провести теплоизоляционные работы. Для этого можно использовать минеральную вату или пенополистирол толщиной в 100 мм.
- Завершающими этапами станут пароизоляция (идеально подойдёт пергамин) и монтаж чистового пола.
Пол в бане нужно обязательно нужно утеплять
Пол для душевой делается немного по-другому:
- Сделайте отдельный фундамент для моечной комнаты. Это гарантия того, что пол в ней всегда будет тёплый и быстро высыхать.
- Снимите слой грунта (0,5 м), сделайте песчано-щебневую подушку толщиной в 10 см в этом котловане.
- Лаги пола изготовьте из асбестоцементных труб, диаметр которых равен 100 мм. Их можно уложить на фундамент и залить бетонным раствором, который будет удерживать их от смещений.
- На трубы постелите обрезную круглую доску толщиной в 40–50 мм. Оставьте между ними зазоры для резиновых прокладок примерно 6–7 мм. Они крепятся к доскам гвоздями.
- Прижмите пол плинтусами.
Видео: как сделать слив в банном полу
Как рассчитать и построить стены
Теперь, когда основание застыло, пол сделан, можно начинать возводить скелет стен бани. Чтобы приступить к этим работам, древесину необходимо хорошо просушить. Не рекомендуется брать для этих целей берёзу, поскольку она подвержена быстрому гниению.
Схема устройства каркасной бани поможет в строительстве
Перед тем как приступать непосредственно к возведению стен, рекомендуется провести предварительный расчёт материала. При этом помните, что его нужно закупать с запасом. Возведение стен проходит в следующем порядке:
- Начните работу с нижней обвязки. Для её монтажа приобретайте крепкие брусья, сечение которых равно 100х100 мм. Соедините их по углам в четверть, хорошенько скрепите гвоздями. Чтобы нижняя обвязка и приделанные угловые стойки не повело, поставьте их на стальные штыри толщиной в 20 мм, которые нужно вмуровать в бетон.
- Этого же сечения брус используется для создания верхней обвязки.
- Для большей жёсткости каркаса, установите восемь раскосов в углах бани.
- По периметру стен поставьте промежуточные стойки из такого же бруса, которым делали обвязки.
Как нужно монтировать стропильную систему
Для сооружения каркаса крыши необходимо подготовить доски сечением 150х50 мм. Они ставятся на ребро и скрепляются друг с другом. Расстояние между стропилами должно быть 100–120 мм. В вертикальной позиции фиксируйте их «косынками», сверху соединяйте коньком.
Снаружи необходимо оставить около 400 мм балки.
Для обрешётки крыши подойдут доски в 250 мм. Их фиксируйте в направлении от конька вниз.
Стропила крепятся специальными пластинами из металла.
Для крепления стропил рекомендуется использовать металлические пластины
Правильное и практичное утепление: подробная инструкция
Каркасная конструкция очень лёгкая, поэтому и утепление тоже должно быть соответствующим, чтобы избежать деформации стен.
При выборе утеплителя для бани необходимо придерживаться нескольких правил:
- у материала должны быть хорошие теплоизолирующие способности;
- его свойства не должны исчезать при воздействии высокой температуры и влажности;
- не должно быть выделений токсических веществ;
- он должен быть пожаробезопасным.
Таблица: какой утеплитель выбрать
Фотогалерея: виды теплоизоляционного материала
Пенополистирол нельзя использовать вблизи печиОпилочно-гипсовую смесь можно сделать самомуПлиты из камыша являются природным утеплителемПлиты минеральной ваты не меняют своих свойст под воздействием высокой температуры и влажности
Этапы утепления бани
Утеплять стены бани стоит ещё на этапе строительства стен. Теплоизоляционный материал укладывается в промежутках между несущими частями каркаса здания. Поверх его устилается гидроизоляция. Таким образом, получается «пирог», в центре которого расположен утеплитель, снаружи — гидроизоляция, по обе стороны — облицовка.
Утепление каркасной бани нужно проводить на этапе строительства
Варианты утепления около печки
Это место, где температура достигает наивысшей точки. Поэтому стены тут следует дополнительно защитить от огня. Некоторые используют для это асбестовые плиты.
Другие считают, что этот материал не очень полезен для человеческого организма и рекомендуют использовать базальт или изолон.
Но все разновидности материалов прекрасно справляются с воздействием высоких температур, защищают стены бани от неприятных последствий.
Утепление пола и потолка
Эту работу можно выполнить в несколько шагов:
- Тщательно утрамбуйте грунт. На него вылейте бетонную основу-стяжку.
- Уложите слой гидроизоляционного материала (рубероид или плотный полиэтилен).
- Уложите теплоизоляцию.
- Ещё раз покройте слоем гидроизоляции.
- Залейте верхний слой бетонной стяжки.
Таким образом вы сделаете черновой пол. Его можно дополнительно проработать гидроизолирующими растворами, после полного застывания. Это дополнительно обезопасит пол от попадания влаги через микротрещины в бетоне и продлит срок эксплуатации.
Потолок утепляется по той же технологии, что и стены:
- На перекрытии потолка закрепите пароизоляционный материал.
- Уложите утеплитель.
- Устелите ещё один слой пароизолятора.
- Последний этап — облицовка.
Утепление потолка в бане позволить сохранить драгоценное тепло в парной
-
Единственным отличием в процессе работы является то, что в потолке, между пароизоляционным материалом и облицовкой, необходимо оставлять небольшое пространство для естественной вентиляции.
Гидроизоляция
Помимо того, что стены нужно утеплять, их ещё необходимо защищать от влаги. Этому способствуют две причины:
- От воздействия влаги любой утеплитель в разной степени начинает терять свои теплоизоляционные качества. А для бани это не очень хорошо.
- Теплоизоляционные материалы долго сохнут после попадания на них влаги. От этого может появиться плесень и гниль, которая может перейти на каркас.
В качестве пароизоляционного материала можно использовать:
- алюминиевую фольгу (она не только защищает от попадания влаги, но ещё и отражает тепло);
- пергамин, который экологичен, стоит недорого;
- полиэтилен.
В качестве гидроизоляции можно использовать рубероид. Но его не рекомендуют для отделки бани, поскольку под воздействием высоких температур он начинает неприятно пахнуть.
Видео: какие ошибки можно допустить при укладке парогидроизоляции
Внешняя и внутрення отделка летней или зимней бани
Каркасная должна не только служить вам долгое время, но и быть красивой внешне.
Специалисты рекомендуют проводить наружные отделочные работы из досок лиственных пород дерева. Под отделку нужно обязательно положить гидроизоляционный материал и утеплитель.
Лучшим отделочным материалом является дерево
Внутренняя облицовка должна быть не только красивой, но и выдерживать высокую температуру и влажность. Вагонка из хвойных пород дерева прекрасно справится с этой задачей. Только не используйте её в парной, поскольку она может выделять смолу. Тут больше подойдёт вагонка из лиственницы.
Липа — отличный вариант для отделки потолка и изготовления полок и лежаков.
Для отделки парной нужно тщательно подбирать деревянную вагонку
Видео: сколько и на что нужно тратить денег при строительстве бани
Отзывы реальных людей о каркасных банях
Если к возведению этой конструкции подойти со всей ответственностью, и выполнять работу по правилам, то у вас получится баня, которая по функциональности и долговечности будет не хуже, чем изготовленная из бруса. При этом стоить она будет гораздо дешевле, а строить её быстрее, причём сделать это можно своими руками. Именно по этим причинам владельцы дачных участков всё чаще отдают предпочтение каркасным конструкциям.
Каркасная баня своими руками – этапы строительства

Традиционно для строительства бани использовались кирпич, шлакоблок или обустраивался деревянный сруб.
Но всегда ли приемлемо использование этих трудоемких технологий? Хорошей альтернативой им станет строительство каркасной бани — сборной конструкции.
Ее можно возвести своими руками или воспользоваться услугой специализированных строительных компаний. При этом время строительства «под ключ» будет существенно меньше, чем по классической технологии.
Выбор схемы и материала изготовления
На первом этапе необходимо выбрать оптимальный чертеж бани. При этом нужно заранее определиться, какие помещения будут в здании, их функциональная нагрузка и комфортная площадь.
Рассмотрим самый простой вариант, в котором есть основные виды комнат.
- Для отдыха. Общая площадь после строительства составит 3*2,5= 7,5 м². Этого будет достаточно для установки стола и 2-3 стульев. Одновременно в комнате смогут находиться до 4-х человек.
- Помывочная (предбанник). В ней устанавливается душевое оборудование. Предназначена для проведения гигиенических процедур. При обустройстве особое внимание уделяется большому количеству влаги – поэтому материал отделки не должен разрушаться при прямом контакте с водой.
- Парилка. «Сердце» любой бани. Большую часть помещения займут полати (2/3 от общей площади). В ней также будет установлена банная печь — электрическая или твердотопливная.
Перед тем как построить каркасную баню своими руками – нужно выбрать материал ее изготовления. Отзывы владельцев подобных конструкций не дают однозначного ответа, какой из них лучше. Поэтому рассмотрим наиболее распространенные виды.
Изготавливается из деревянного бруса размером от 50*75, 50*100 или 40*75. Лучше всего использовать заготовки из липы, лиственницы или осины. Влажность материала не должна превышать 20% — т.е. брусья должны быть просушены. Не допускается наличие сколов, трещин или других дефектов, влияющих на механическую прочностью.
Из них будут возводиться не только стены бани, но и обустраиваться крыша. Размер кровельных стропил такой же, как и стеновых. Допускается применение бруса меньшего габарита, но с учетом того, что он способен будет выдержать снеговую нагрузку.
Оптимальный вариант – монтаж SIP плит. Их торцы должны быть отфрезерованы соответствующим образом, что можно сделать только в заводских условиях. Плиты являются несущим элементом здания, поэтому можно изменить шаг стоек с 0,6 м на больший – до 1,5 м.
Однако стоимость подобных плит довольно высока — от 3200 руб. за 1 м² при толщине 174 мм. Поэтому лучше всего использовать влагостойкую ОСП плиту. С ее помощью можно сделать наружные и внутренние стены бани, а внутрь установить утеплитель – базальтовую вату.
Строительство фундамента
Даже каркасная баня с мансардой в большинстве случаев не нуждается в возведении ленточного заглубленного фундамента. Но несмотря на то, что масса здания будет небольшой – нужно предварительно изучить состав почвы, уровень ее промерзания и горизонт грунтовых вод. Поэтому фундамент под баню – это отдельная тема, требующая более полного раскрытия.
Чаще всего делают мелкозаглубленное основание. Для этого можно использовать цементный раствор или делать конструкцию из шлакоблоков или кирпичей. Последний вариант не рекомендуется, так как он менее устойчив к внешним воздействиям, чем монолитная конструкция.
Также делают столбчатый фундамент для бани. Количество опор напрямую зависит от веса будущего здания и его площади. Средняя площадь каждого столба (S) должна быть не менее 1900 см². Предположим, что общий вес (F) бани составит 60 тон. Тогда требуемое количество опор вычисляется по данной формуле.
N=F/(R*S)
Показатель R – это расчетное сопротивление грунта. Это значение можно взять из данных таблицы.
Т.е. в нашем случае количество опор при значении R=4 будет равно.
N=60000/(4*1900)= 8 шт.
В дальнейшем на столбы устанавливают горизонтальные закладные брусья, которые послужат основанием для будущего каркаса бани.
Делаем каркас
Для строительства стен необходимо сделать основу из заранее подготовленных брусьев. Каркасная технология заключается в соединении вертикально расположенных элементов в единую конструкцию.
Важно соблюдать расстояние между брусьями. Оно не должно превышать 600 мм. В противном случае значительно уменьшится устойчивость и механическая прочность всей конструкции.
В качестве горизонтальных соединительных элементов можно применять обрезную доску 25*100 мм. Устройство каркасной бани обязательно включает в себя теплоизолирующий слой.
Лучше всего применять базальтовый утеплитель, так как он обладает следующими важными для бани свойствами.
- Пожарная безопасность. Он не горит под воздействием пламени, а температура плавления волокон составляет 700°С.
- Гигроскопичность. Базальтовая вата пропускает сквозь свою структуру водяные пары, что способствует удалению избыточной влаги.
- Простой монтаж. Можно выбрать рулонные или листовые модели теплоизоляционного материала.
Для бани можно применять упрощенную схему сборки каркаса. В верхних и нижних угловых частях устанавливают диагональные перемычки для связки элементов конструкции. Такая методика применима только для зданий с небольшой высотой потолков – до 2,7 м.
Эффективное утепление бани можно сделать только при минимальном слое базальтовой ваты 100 мм. Дополнительно рекомендуется обработать наружные стены деревянной вагонкой или специальной штукатурной смесью с применением каркасной сетки.
Обустройство кровли
Крышу лучше всего делать двускатную с оптимальным углом наклона 20-23°. Это обеспечит схождение атмосферных осадков с ее поверхности. Стропила должны в нижней части крепиться к несущим стенам здания. А вверху образовывать конек кровли.
Перед укладкой кровельного материала следует установить теплоизолирующий слой. Для этого можно использовать ту же базальтовую вату. Затем поверх стропил укладывают гигроскопичную гидроизоляцию из ПВХ пленки. Поверх нее на стропила набиваются дистанционные рейки для формирования воздушного зазора.
В зависимости от основного материала покрытия крыши бани выбирается шаг деревянной обрешетки. Например, для металлочерепицы он может составлять 200-350 мм. Если общая площадь кровли превышает 60 м² — нужно сделать дополнительные вентиляционные каналы. При строительстве каркасной бани эта мера будет дополнительным фактором для удаления избыточного конденсата из чердачного помещения.
Внутренние стены и пол
При укладке пола нужно обязательно учитывать угол наклона. Это необходимо для слива воды в канализационную систему. Последнюю можно сделать по упрощенной схеме, которая включает в себя установку подпольных желобов и водоприемников.
Это будет оптимальным вариантом, если при строительстве каркасной бани своими руками обустраивался столбчатый фундамент. Но помимо этого для пола нужно учесть такие факторы.
- Для деревянных покрытий рекомендуется делать обрешетку из специальных влагостойких сортов древесины.
- Лаги предварительно обрабатываются антибактериальным средством для уменьшения вероятности появления грибка или плесени. Расстояние между ними должно составлять минимум 60 см.
- Заливка бетонной поверхности для каркасного здания не рекомендуется, так как это значительно увеличит нагрузку на фундамент.
Правильная отделка внутри бани чаще всего выполняется с помощью деревянной вагонки с компенсационными тепловыми канавками. Важно соблюдать правильность расположения отдельных элементов.
Делать самому или заказать под ключ?
В настоящее время на рынке есть несколько привлекательных предложений по строительству каркасной бани под ключ. При этом используются типовые проекты, которые включают в себя все необходимые элементы здания.
| Размеры каркасной бани, м | Средняя стоимость, тыс. руб. |
| 6*3 | 210 |
| 5*6 | 285 |
| 4*6 | 242 |
| 6*6 | 395 |
Но перед заказом готовой конструкции нужно уточнить следующие детали.
- Отдельный фундамент для печи. Если ее масса превышает 500 кг – нужно обустраивать отдельный фундамент, который не будет связан с основным. Это скажется на стоимости проекта.
- Материал отделки внутренних и внешних стен бани.
- Схема обустройства кровли.
- Установка канализации и систем водоснабжения.
В итоге к первоначальной сумме нужно будет прибавить как минимум 10-15%. Если же есть уверенность в собственных силах – каркасную баню лучше всего построить самостоятельно.
Но при этом нужно помнить о соблюдении технологии возведения и выборе правильного материала.
В итоге при профессиональном подходе стоимость здания, в сравнении с готовой конструкцией от специализированной компании, может быть меньше на 25-30%.
Проекты каркасных бань, чертежи, схемы видео

Каркаснаятехнология строительства применяется не только при возведении жилых домов – бани, гаражи, сараи и другие хозяйственные постройки, в строительстве которых используются каркасные элементы, все больше завоевывают благосклонность индивидуальных застройщиков по понятным причинам.
Даже проекты каркасных бань – это теплые и долговечные постройки, а скорость их возведения такова, что париться в новой бане можно будет уже через 2-3 недели после начала строительства.
И, конечно, дешевизна материалов и рабочего процесса не оставляет равнодушным никого при планировании объектов недвижимости на участке.
Типовые проекты каркасной бани
Примеры индивидуальных проектов каркасных бань
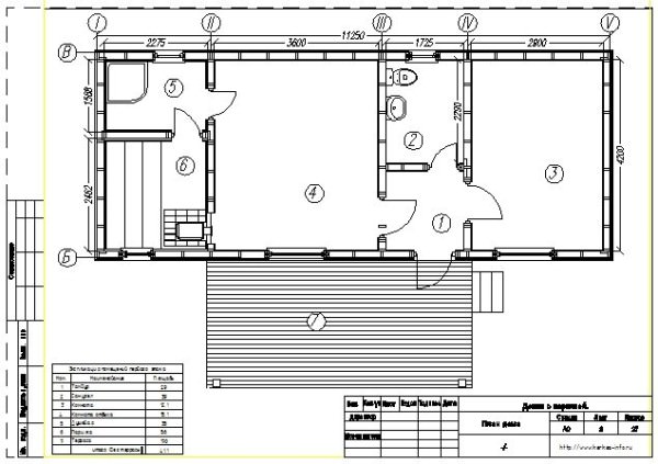
Ниже вы видите индивидуальный проект каркасной бани 6х4 метров, на котором видно, что, кроме парилки площадью 7,65 м2, в строении есть просторная комната для отдыха, компактный санузел и тамбур с крыльцом.
Каркас бани стоит на ленточном мелкозаглубленном основании (МЗЛФ) глубиной 0,7 м, фундамент имеет продолжение в виде цоколя высотой 0,4 м, полная высота МЗЛФ – 1,1 м, слой щебня или гравия под подошвой фундамента – 0,2 м.
Тамбур не позволяет холодным воздушным массам проникать внутрь при открывании дверей.
Простой проект каркасной бани размером 4 х 6 метров
Общая площадь бани — 24 м2, площадь и размеры помещений:
- Помещение для отдыха — 12 м2;
- Парилкой на 7,65 м2;
- Санузел 4,35 м2
Из каких стройматериалов собирается каркас бани:
- Вертикальные стойки, верхний и нижний обвязочный пояс — доска 100 х 50 мм;
- Балки чернового пола — доска 150 — 50 мм;
- Стропила — доска 150 — 50 мм.
Этот проект каркасной бани предусматривает каменку, установленную и протапливаемую в парилке, и такое тесное расположение обусловлено исключительно размерами бани. Параллельный вариант расположения печки – тоже в парилке, но с удлиненной топочной камерой, что позволит закладывать дрова из помещения для отдыха. Такое решение позволит отапливать не только парилку, но и комнату отдыха.
Проект бани с мансардой
Типовые проектные решения для каркасных бань вряд ли будут предлагать такой вариант — проект каркасной бани с мансардой.
Это – сугубо частное решение, обусловленное маленькими размерами земельного участка и желанием разместить на нем как можно больше полезных площадей.
Нижний этаж бани имеет стандартный набор помещений: комнату для отдыха, парилку, террасу, мойку и предбанник (на чертеже проекта — прихожая). И, конечно, винтовую лестницу на мансардный этаж.
Каркасная баня с мансардой
Такая каркасная баня 6х4 также довольно тесная, но мансарда расширяет ее возможности.
Кроме того, стандартный размер строения позволяет использовать стандартные пиломатериалы длиной 300 или 600 см, что минимизирует количество отходов.
Баню можно ставить на столбчатый, ленточный или свайный фундамент, так как ее масса незначительна в силу каркасного варианта рамы.
Проект является более функциональным, так как после парилки можно не только отдохнуть в отдельном помещении, но и просто принять душ в моечной. Парилка связана с моечным помещением отдельной дверью, поэтому в душевой будет довольно высокая температура и влажность. Кроме того, в моечной можно обустроить пару лежанок, что еще больше повысит комфортность отдыха после парной.
Общая площадь этого проекта вместе с мансардой — 42 м2. Размеры и площадь помещений:
- Комната отдыха — 10 м2;
- Прихожая — 2,25 м2;
- Моечная — 3 м2;
- Парилка — 5 м2;
- Мансарда – 18 м2.
Проект бани с террасой
Типовые проекты каркасных бань с террасой чаще всего просто делят общую площадь пополам, оставляя мало места под функциональные помещения. Поэтому индивидуальное проектирование в этом случае предпочтительнее, и одно из решений показано ниже. Баня довольно просторная (114 м2), так как при размерах 6 х 4 террасу устроить очень сложно.
Подобные проекты бань каркасного типа стараются оснастить более широкими возможностями, так как сделать это позволяет дополнительная площадь. Так, чертежи этого проекта отображают наличие бассейна, совмещенного с парилкой, и коридора, а также сауны и отдельного топочного помещения, гостиной, и, естественно, просторной террасы, на которую приятно выйти после парилки.
Баня с террасой
Так как топочное отделение отгорожено от остальных помещений, в нем можно устроить не просто каменку, а оборудовать небольшую систему отопления, которая будет охватывать те помещения, которые не обогреваются от парилки.
Так как таких помещений много, отопление лишним не будет, тем более – для зимней террасы.
Согласно схемы этого проекта, терраса как раз предназначена для зимней эксплуатации, поэтому она отделена прихожей и коридором, которые также необходимо подключить к отопительной системе.
Даже каркасные бани с террасой легко возводятся своими силами, без привлечения спецтехники и дополнительных рабочих рук.
Общая площадь бани, построенной по проекту выше — 114 м2. Площадь и размеры помещений:
- Сауна — 11,74 м2;
- Душевое помещение – 10,45 м2;
- Парилка с бассейном – 8,22 м2;
- Терраса – 33,83 м2;
- Прихожая (предбанник) – 3,33 м2;
- Коридор – 5,29 м2;
- Топочное помещение – 4,72 м2;
- Санузел – 4,72 м2;
- Гостиная (комната для отдыха) – 18,88 м2.
Стройматериалы:
- Обвязка – брус 100 х 150 мм;
- Черновой пол — брус 150 х 100 мм;
- Перекрытие потолка — доска 150 х 40 мм;
- Стропильная система — доска 100 х 50 мм;
- Материал для кровли — профнастил, листовой оцинкованный металл, металлочерепица, шифер, ондулин.
Маленькая баня с террасой
Размеры этой мини-бани — 4 х 4 м, размеры террасы – 4 х 1,5 м. Для семьи из 3-4 человек это – вполне приемлемые габариты. Функциональность бани от размеров не страдает – есть мойка, парилка на два человека, комната для отдыха, и остается достаточно места для веранды или террасы, во влажных помещениях оборудованы окна с форточками (одно – в парилке, одно – в моечном помещении).
Парилка идеально подходит для одного человека, так как лежачий полок – только один, на втором можно только сидеть, что в понятии русской бани является не совсем полноценным отдыхом. Размеры моечной некритичны, так как в ней всегда будет находиться только один человек. Поэтому площадь моечного помещения принесена в жертву размерам террасы и комнаты отдыха.
Баня размером 4 х 4 м с террасой размером 4 х 1,5 м
Площадь всех помещений:
- Помещение для отдыха – 5,67 м2;
- Мойка — 3,04 м2;
- Парилка — 3,61 м2;
- Терраса — 6 м2.
Строительные материалы:
- Обвязочный брус – 100 х 150 мм;
- Черновой пол — брус 150 х 100 мм;
- Перекрытие потолка бани – доска 150 х 40 мм;
- Стропила – доска обрезная сечением 100 х 50 мм;
- Материал для кровли — профнастил, листовой оцинкованный металл, металлочерепица, шифер, ондулин.
Каркасная баня 5,4*6,3 м
Все каркасные бани проекты которых представлены здесь, рассчитаны на самостоятельное строительство с минимальными трудовыми и финансовыми затратами.
Например, план бани, представленный ниже, упрощен до минимума, и этим привлекает застройщиков, желающих иметь баню на маленьком участке.
Но даже такое небольшое строение можно оборудовать пристройкой – террасой размером .2 х 5,4 м, по длине короткой стороны бани.
Баня с минимальным функционалом
Параметры:
- Общая площадь бани — 22,2 м2;
- Парилка – 5,0 м2;
- Площадь комнаты для отдыха — 11,3 м2;
- Моечное помещение — 5,9 м2;
- Терраса — 10,8 м2.
Достоинства строительства бань на каркасной основе
Каркасное проектирование включает в себя брусовую раму, обшитую отделочными пиломатериалами изнутри и снаружи. Все свободное пространство внутри каркаса забивается слоями паро- и теплоизоляции.
Такая форма строительства идеально подходит для частных застройщиков, потому что автоматически попадает в разряд малобюджетных.
Кроме того, строительство можно еще удешевить, если использовать не промышленные материалы для теплоизоляции, а народные приемы утепления стружкой, опилками, и т.д.
Из-за маленького веса строения появляются дополнительные преимущества, как-то: фундамент, на котором будет стоять каркасная баня проекты которой описаны выше, можно строить облегченным – незаглубленным или мелкозаглубленным, свайным или столбчатым, что совсем дешево по сравнению с фундаментами других типов и мощностей. Конечно, если застройщик хочет перестраховаться, то баня прекрасно будет эксплуатироваться и на плитном, и на ленточном монолитном основании, но стоимость проекта возрастет намного.
Схема стены каркасной бани
При строительстве небольшой каркасной бани понадобятся вполне стандартные инструменты: пила или ножовка по дереву (можно заменить болгаркой), молоток, саморезы по дереву или гвозди, шуруповерт или мощные отвертки, отвес и строительный уровень. При возможности механизировать строительный процесс конечный результат только приблизится. Основное преимущество каркасного строительства – это работа для одного человека, а это – экономия семейного бюджета.
Недостатки
Высокая пожароопасность — главный недостаток каркасной бани, который частично минимизируется пропиткой древесины антипиреновыми растворами. Из-за повышенной пожароопасности электропроводку необходимо прокладывать в самозатухающем гофрированном шланге, что сделает смету несколько больше.
Скелет каркасной бани
Отрицательное влияние на постройку оказывает и постоянно высокая влажность в помещениях, поэтому, кроме антипиренов, древесину пропитывают и антисептиками, отсекающими возможность появления плесени и других грибковых заболеваний. В дополнение в антисептической защите в пространстве каркаса укладываются слои паро-и гидроизоляции.















































