Какую баню из кирпича построить на своем участке?

Часто владельцы загородного дома задумывается о постройке на своем участке бани. Наличие бани на участке позволяет человеку расслабиться и отдохнуть. Есть много различных проектов бань для загородных участков.
Они различаются как своей сложностью, так и материалом, из которого выполнена баня. Наиболее распространенными материалами для строительства бань является дерево и кирпич.
Каждый их этих материалов имеет свои достоинства и свои недостатки.
…
Достоинства
Хотя деревянные бани строились на Руси с давних времен, тем не менее, в последнее время большое распространение стали иметь бани из кирпича. Такая баня имеет следующие преимущества:
- долговечность. Срок службы кирпичной бани достигает 150 лет;
- повышенная пожаробезопасность;
- приятный внешний вид. Например, при использовании красного облицовочного кирпича не нужна внешняя отделка;
- хорошие теплоизоляционные характеристики;
- кирпичная баня обычно хорошо гармонирует с другими строениями на участке;
- прочность конструктивных элементов такой бани позволяет создавать строение сложной конфигурации.
Самым главным недостатком кирпичной бани считается невозможность быстрого прогрева бани в холодных условиях. Кроме того, для создания в кирпичной бане хорошей парилки необходима многослойная конструкция из теплоизолятора и пароизоляционной пленки.
Бани из кирпича отличаются по своим размерам, по планировке или другим характеристикам.
В проектных компаниях имеются как эконом проекты, рассчитанные на 2-3 человека с маленькой парилкой и небольшой раздевалкой, так и солидные проекты бань из кирпича со вторым этажом для принятия гостей и проживания там хозяев.
Кроме того, иногда к большим баням предусматриваются различные пристройки в виде террас, веранд или беседок.
Ведь часто баня на загородном участке является не только местом принятия водных процедур, но также и местом встречи с друзьями и близкими.
Существуют типовые проекты, которые отличаются тем, что они стоят дешевле и уже прошли проверку временем. Тем же заказчикам, которые предпочитают эксклюзивные строения на своем участке, предлагаются индивидуальные проекты бани из кирпича.
Обычная стандартная баня, в том числе кирпичная баня, состоит из предбанника, моечной и парилки. Для нагрева в бане обычно имеется печь с баком для горячей воды.
Предлагается вариант кирпичной бани, в которой перегородка в парной сделана из соляных кирпичей, которые изготовляются путем выпиливания их из соляной глыбы.
При этом жаркий влажный воздух в парной насыщается целебными парами соли.
Стены из соляных кирпичей пропускают свет, что позволяет уменьшить число светильников, а благодаря преломлению света, проходящего через соляные кирпичи, в парилке возникают необычные световые эффекты.
Внутренняя часть бани из кирпича обычно утепляется. Для этого используется утеплитель, на который кладется слой пароизоляции. Сверху внутренняя часть бани покрывается деревом. Обычно для этого используется вагонка. Правильным является отделка различных помещений бани разными сортами дерева.
Так, например, парная должна быть отделана лиственницей или липой. Эти породы дерева не перегреваются и смогут прослужить долгое время. В раздевалке обычно используется сосна, которая испускает непередаваемый банный аромат, который очень полезен для здоровья.
Одним из типов кирпичной бани, предназначенной не только для принятия водных процедур, но и для культурного проведения времени в компании, является двухэтажная баня. В такой бане, кроме предбанника и парилки, вполне могут разместиться и другие помещения:
- дополнительное жилое помещение;
- бильярдная;
- тренажерный зал;
- комната для чтения, игр и отдыха.
Особенно удобным вариантом двухэтажная баня из кирпича является для относительно небольшого загородного участка. В случае постройки такой бани можно значительно сэкономить площадь участка.
Наряду с экономией площади участка в таком проекте есть и экономическая выгода. В случае построения двухэтажной бани из кирпича нет необходимости строить отдельные фундамент и крышу для дополнительных строений.
Отзывы владельцев
Поскольку кирпичные бани начали строиться позже, чем деревянные, то отзывов по эксплуатации кирпичных бань не слишком много.
Большинство владельцев бань из кирпича отмечают большую устойчивость кирпичных бань к гниению. Вот у деревянной бани венцы сгнили, а кирпичная баня стоит, как стояла.
Некоторые владельцы выбирают кирпичную баню из-за того, что все строения на участке – кирпичные. И для того, что вид был более эстетичен, баня должна быть также кирпичная.
Отмечается трудности при нагревании бани в холодное время года и хозяину приходится тратить много дров.
Некоторые любители, которые хотят иметь долговечную баню и мыться в деревянной бане, делают комбинированную постройку – строение бани делают из кирпича, а внутренние переборки и парилку – из дерева.
Строительные организации предлагают большое количество различных проектов бань из кирпича. Среди них проекты как совсем простой кирпичной бани с открытой террасой и душем, так и бани из кирпича, в которую встроен бассейн или кирпичной бани с кирпичным мангалом.
Большинство кирпичных бань снаружи не имеют какой-либо отделки. Кирпич на вид вполне эстетичен. При этом, стены кирпича выполнены как из красного кирпича, так и из белого – силикатного.
Фото и проекты кирпичных бань (планы бань из кирпича).
Красивая кирпичная баня по проекту Е 080-1К похожа на дворец с колоннами. Ее размер 12,5 х 6,8 м. В состав ее входит моечная, хамам, веранда и хозяйственная площадь для оборудования.
Другие проекты, в том числе проекты кирпичной бани с террасой.
Выводы
- В настоящее время все большее распространение получили бани из кирпича.
- Бани из кирпича являются более долговечными и безопасными от пожара, чем бани из дерева.
- Строительные компании могут построить баню из кирпича на любой вкус, от самой простой до двухэтажной бани или бани с бассейном и мангалом.
Сравнение с деревом бани из кирпича — плюсы и минусы – Русская баня

Во многих регионах, где есть местный кирпичный завод, кирпич является очень доступным материалом. Его используют для строительства стен домов, фундаментов, цоколей. Часто кирпич применяют там, где традиционно используют бетон.
Пример — кирпичные фундаменты, животноводческие помещения, гаражи. В бане из кирпича можно сделать стены, цоколь, фундамент, печь и печную трубу. Для каждого элемента нужно подобрать вид кирпича, который соответствует функциональной задаче.
Общие правила выбора материала
- Для стен годится обычный красный кирпич, пустотный, силикатный (не годится облицовочный).
- Для фундамента — обычный красный, а также партии с дефектами внешнего вида, например железняк (не годится пустотный и облицовочный).
- Для печи — красный и огнеупорный (силикатный не подходит из-за низкой огнестойкости).
Кирпич для бани закупается оптом и привозится одной партией на автомобилях. При хранении нужно его защитить от воды.
Общие правила здесь примерно такие же, как и для пиломатериалов из древесины.
Привезенный кирпич складывается в штабель на деревянном поддоне и укрывается пленкой. Также штабели удобно располагать под навесом. Кладка кирпича, особенно если она выполняется одним человеком, занимает несколько недель. Все это время кирпич должен храниться в сухом месте.
Плюсы и минусы
Кирпичная баня — это капитальное долговременное сооружение. Стоимость ее возведения будет дороже классической деревянной бани, но она и прослужит в разы больше.
Из минусов кирпичной бани можно отметить необходимость ее тщательного утепления. Не всегда для этого используются безопасные экологичные материалы. Главный плюс кирпичного строения — несгораемость и долговечность.
Цоколь и фундамент
Фундамент для бани из кирпича своими руками выкладывается в виде ленточной конструкции. Кирпичная баня тяжелая, поэтому свайный или столбчатый фундамент для нее используется редко, но на плотных скальных грунтах он вполне допустим. Ленточный фундамент остается самым надежным и распространенным вариантом.
Фундамент для бани из кирпича строится из хорошо обожженных плотных сортов.
Кирпич может быть с внешними дефектами, пятнами, неравномерным цветом.
Главное — хорошая прочность и водостойкость.Пористые и пустотные сорта нужно не рассматривать сразу.
Керамика обладает способностью впитывать воду. Если кирпич взвесить и положить на сутки в ведро с водой, то на следующий день он будет значительно тяжелее. Даже 1 кирпич способен набрать в себя несколько десятков грамм воды.
Само по себе проникновение воды в керамику не наносит ей никакого вреда. Пример — многочисленные археологические находки из керамики. Другое дело, если процесс пропитывания водой сопровождается циклами замораживания.
Именно поэтому кирпичные фундаменты не служат вечно, но все равно очень долговечны. Некоторые производители кирпича указывают число циклов замораживания без значительного снижения прочности. Их число составляет не менее 100, что обеспечивает кирпичному фундаменту и цоколю почти столько же лет службы. Для бани этого более чем достаточно.
Кладка цоколя
Цоколь делается несколько толще стены, но придерживаться этого правила необязательно. Увеличение толщины делается на полкирпича. Большее значение нецелесообразно. Также цоколь не следует делать толще фундамента в бане. Это отрицательно скажется на устойчивости всей конструкции.
Фундамент под баню из кирпича выкладывается по той же схеме, что и стены. Песчаная подушка предохраняет фундамент от пучностей грунта. От провалов защищает нижний армированный слой. В фундаменте очень выгодно совмещать кирпич с бетоном. Значительно добавит прочности бетонный пояс, который обязательно армируется продольной арматурой большой длины.
Общие правила строительства из кирпича
- Минимальная толщина стен для бани — в один кирпич.
- Каждый ряд кладется строго по уровню с соблюдением толщины швов;
- Для стены используется кирпич одной партии и одного цвета (исключение — заранее заданное декоративное расположение разноцветных кирпичей).
- На кирпичном здании обязательны сейсмические пояса из арматуры;
- Кладочный раствор — не ниже M250-М350.
Цоколь кладется по бетонной плите фундамента. Под кирпичный цоколь пригодны бутовые, бетонные и кирпичные фундаменты. Вариант из любого материала может быть как ленточным, так и столбчатым.
В любом случае нужно строить фундамент с учетом веса бани и характеристик грунта.
Кладка столбчатого фундамента
Из кирпича очень удобно выкладывать столбики. Такие конструкции можно весьма часто видеть в качестве столбов под ворота и заборы. В столбчатом фундаменте они выкладываются по такому же принципу.
Сечение столбов — 1,5-2 кирпича. В один кирпич столбики тоже можно сделать, но нужно участить их расположение.
Любому столбчатому фундаменту необходим мощный железобетонный ростверк. Без него он будет очень непрочной конструкцией.
Столбчатый фундамент для кирпичной бани подходит только для плотных сухих грунтов. Если он не применяется для домов в вашем регионе, проконсультируетесь у строительных специалистов по поводу целесообразности его строительства.
Пароизоляция и гидроизоляция
Керамика и кирпич обладает нежелательным свойством хорошо впитывать воду. Этот недостаток устраняется тщательной гидро и пароизоляцией. Кирпич в стенах, цоколе и фундаменте нужно защитить от проникновения влаги из любых источников:
- просачивание влаги из грунта: на фундаменте прокладываются рубероидные прослойки;
- проникновение воды из бани: изолируется стяжка пола в моечной;
- косвенное накопление влаги из конденсата от большой разницы температур, (здесь ставятся пароизоляционные мембраны).
Чем покрыть кирпич в бане, и зачем это нужно
Снаружи кирпич лучше вообще ничем не покрывать. Это обеспечит красивый внешний вид. Внутри бани прямо обратная ситуация. Голый кирпич там не используется почти никогда. Об утеплении подробно рассказано в других статьях нашего сайта.
Покрытие кирпича изнутри производится для гидроизоляции. Разумнее всего здесь использовать специально разработанные для этого пароизоляционные мембраны.
В некоторых случаях кирпич в бане оставляют в открытом виде. Если для стен выбран кирпич высокого качества, то он будет смотреться очень декоративно не только снаружи, но и внутри.
При этом оставлять кирпичные стены внутри бани необлицованными нельзя из-за требований к теплоизоляции. В крайнем случае, по требованиям дизайна можно оставить такие стены в предбаннике. В основном, если в бане где и видно кирпич, то это либо на печи, либо на перегородках.
Из кирпича выкладываются как обычные банные печи-каменки, так и сложные отопительные. Размеры отопительных щитков могут быть на полстены. Также из кирпича выкладывается защита стены от нагрева печью. Все эти элементы обычно не штукатурятся. Внутри их можно покрыть различными интерьерными лаками, но делать это целесообразно далеко не всегда.
Покрытие кирпича лаком проводится с целью защитить нестойкую к загрязнениям керамическую поверхность. В интерьере, особенно, если за стену берутся руками, кирпич очень быстро загрязнится. Исправить это положение можно, применив лаковое покрытие.
Деревянная обшивка, установка маяков
Кирпичная баня обязательно обшивается изнутри древесиной. Этот слой выполняет утеплительную и эстетическую функцию. Лучший способ отделки кирпичной бани — обшивка деревянными досками, вагонкой, блок-хаусом или имитацией бруса.
Если обшивка тонкая, например вагонка, то годятся только влагоустойчивые породы, например: осина, липа и лиственница. Сосновая вагонка для парной не подходит. Между деревянным слоем и кирпичом располагают утеплитель.
Вне зависимости от вида пиломатериала, которым производится обшивка, маяки ставятся вертикально. Они играют роль связующего узла между кирпичом и деревянной доской обшивки. Маяк — это деревянный брусок, который крепится за кирпичную стену, а к его внешней стороне прибиваются доски обшивки.
Крепление маяка к кирпичу выполняется с помощью дюбелей и уголков. В комплексе с дюбелем можно использовать различный специализированный крепеж. Его удобно приобретать комплектом. Расчет проводите по числу маяков. В среднем они располагаются через каждые 0,5 м стен.
Сечение бруска маяка обычно выбирается равным толщине утеплительного слоя.
Внешняя грань должна быть не уже 3 см. Тогда к ней удобно будет крепить обшивку.
Помимо своей прямой функции, маяк является направляющей для крепления досок. Он должен быть установлен строго по отвесу. Это гарантирует аккуратный внешний вид обшивки.
Угол в парной
Из кирпича выкладывается массивная облицовка, занимающая весь угол парного отделения. Она предохраняет деревянную отделку на стенах (а в деревянной бане и всю конструкцию целиком) от возгорания. Таким образом, получается хороший защитный и декоративный элемент. Он удобно расположен возле печи.
Угол из кирпича выкладывается в два слоя, а в некоторых случаях и в один. В два слоя предпочтительнее, так как они позволяют получить хорошее перекрытие швов. Для полностью кирпичной бани кирпича закупается достаточно, поэтому угол лучше выкладывать в два слоя. Работы выполняются до обшивки парной. Толщина швов — минимальная с хорошей декоративной расшивкой.
Процесс обшивки стен — на что обратить внимание?
Кирпичные бани отделываются только внутри. Снаружи кирпич лучше ничем не отделывать. Он и так выглядит очень неплохо и очень стоек ко всем климатическим воздействиям. Исключение — бани, построенные из низкосортного кирпича с внешними дефектами и бани из белого силикатного кирпича. Белый цвет не всегда уместен, но его тоже можно правильно использовать в дизайне.
Внутренняя отделка бани из кирпича имеет две главные задачи: улучшение внешнего вида и утепление.
Кирпич, даже если вы использовали самый теплый пустотный вариант, является очень теплопроводным.
В сравнении с традиционной для бань древесиной, он ей проигрывает больше чем в два раза. Внутренняя отделка кирпичной бани практически всегда делается из древесины. Это оптимальный вариант.
Для моечной и парной других вариантов и нет. Комнату отдыха можно отделывать и другими материалами, помимо древесины. Необходимо только обеспечить, чтобы вся эта отделка имела уместный «банный» вид.
Портал вокруг печи
В современных банях получили большое распространение стандартные печи-каменки, изготовленные из металла. Их можно обложить кирпичом. Делается это из соображений безопасности и дизайна, так как кирпич очень красив в интерьере.
Портал в бане из кирпича выкладывается из отборных сортов. Без наличия должного опыта его кладку лучше доверить профессионалам. Если в портале нет объемного свода, требующего для кладки специализированного конического кирпича, то его вполне можно выложить самостоятельно.
Кирпичная разделка вокруг топки в бане послужит дополнительной защитой от пожара и декоративным элементом. Кроме того, обкладка кирпичом металлической печи способствует более долгому удержанию тепла.
Кладка портала вокруг печи ведется по классической схеме вручную. Для кладки каждого ряда натягивают шнур строго по уровню. Кладка ведется на цементном растворе. Глиняный раствор используется только для кладки кирпича вокруг топливника и нигде более. Использование цементного раствора обеспечивает кладке прочность и водостойкость.
Обшивка изнутри — видео
Баня из кирпича. Виды бань из кирпича. Баня из кирпича своими руками

Открылась первая в мире банная галерея. Она находится в Киеве, совмещает в себе выставочное пространство и парилку. Первое отдают под работы современных художников и проведение поэтических вечеров.
При этом, галерея работает в режиме обычной бани. Так сообщают «Вести» со ссылкой на страницу проекта в «Фейсбуке». Расположена баня на территории имения Юрия Збанацкого.
Усадьбе писателя около века. Сделан дом из кирпича. Из него же, с прицелом на долговечность, отстроили баню. Насколько оправдан выбор материала, разберемся далее.
Какой кирпич выбрать для бани?
Выбор кирпича вместо популярного дерева объясним. Каменная кладка эстетична, не интересует грызунов, менее влагоемка и не боится огня. К тому же сруб дает усадку. Внутреннюю отделку бани начинают лишь через полгода после установки.
Оформлять помещение из кирпича можно сразу после постройки. Правда, тяжесть искусственного камня требует мощного фундамента, а это дополнительные затраты и работы. Учесть нужно и многослойность конструкции.
Парилку придется прокладывать пароизоляционной пленкой и теплоизоляцией. Без деревянной отделки внутри тоже не обойтись. Берут липу или лиственницу. Они не перегреваются.
Остается упомянуть, что кирпич теплоемок. Иначе говоря, материал долго набирает жар. Ожидание прогрева – минус, но есть и плюс. Отдает тепло баня из кирпича столь же долго, как и запасает.
Теплоемкость, влагостойкость и тяжесть кирпича зависят от его типа. Некоторые варианты проигрывают даже древесине, к примеру, силикатный кирпич. Вместо глины в нем песок с известняком.
Обжиг заменен на обработку горячим паром. Блоки активно производились в СССР. Ныне силикатные заводы закрываются, что указывает на малую конкурентоспособность известкового кирпича.
Он дешевый, но пористый, что позволяет вбирать влагу. Она разрушает блоки, сокращая их службу. Печь для бани из кирпича силикатного типа тоже не годится. Материал оплавится, разрушится.
Для топок берут исключительно шамотный кирпич. Он керамический, то есть обжигается, состоит из глины. Глину берут тугоплавкую. Некоторые сорта обрабатывают при 1 700-от градусах. Готовые блоки выдерживают более 2 000 по Цельсия. Это сказывается на цене кирпича. Выкладывать из шамота всю баню экономически не оправдано.
Для стен, как правило, берут строительный керамический кирпич. Стоит обратить внимание на его цвет. Выражено красный тон – свидетельство малого обжига. Без него блоки хрупкие и не выдерживают критики по влагостойкости.
Настораживает и фиолетово-бурый оттенок кирпича. Он указывает на излишний обжиг. Подобно превратившемуся в уголь пирогу, плиты трескаются и рассыпаются.
Заменить керамический может лего кирпич для бани. На российском рынке продукт новый. Европу лего блоки покорили еще в прошлом веке. Создан продукт в Дании Оле Кристиансеном. Он руководил бригадой столяров.
Изначально, кирпичики были деревянными игрушками для детей. После, проект перерос в известный всем конструктор Lego. Далее, по принципу конструктора создали реальные строительные кирпичи. Наличие в них штырьков и пазов под них облегчает кладку. Трудоемкая работа с кирпичом становится легкой и увлекательной.
По техническим характеристикам лего блоки не уступают керамическим. Правда, как для последних нужно учитывать условия обжига, так для первых важна сила пресса. Лего не обжигают, а формируют под давлением.
Дашь 2 тонны — получишь низкосортное подобие кирпичей, надавишь с силой в 80 тонн — выйдет первосортный кирпич. Мощные прессы есть лишь на крупных заводах. Там соблюдается ГОСТ и дается шанс ощутить надежность каменного строения играючи.
Виды бань из кирпича
Проекты бань из кирпича делятся на стандартные и нетиповые. К первым относятся строения из трех помещений. Это предбанник, моечная и парилка. Но, фото бань из кирпича показывают домики с бильярдными, барами, соляными комнатами и перегородками.
Последние строятся из особого кирпича. Это блоки соли, вырезанные из породы, ведь каменная соль на то и каменная, что является природным минералом.
Соприкасаясь с парами воды, соляные кирпичи отдают им свои ионы. Создается воздух, подобный морскому. Его целебная сила дополняет эффект от бани. Она, кстати, в близком для современного человека виде, появилась в Древнем Египте.
Его жрецы возвели чистоту тела в культ, мылись по 4 раза в сутки. Пар бань признали лечебным и стали советовать в качестве профилактики и врачевания многих заболеваний. Но, о целебных свойствах бани, тем более с соляными стенками, можно говорить часами. Пока же, продолжим тему устройства нетиповых парилок.
Как сделать баню из кирпича и соляных блоков задаются вопросом, поскольку светлый минерал пропускает свет. Он преломляется в камне. Это дает световые эффекты, приятные глазу. К тому же, можно сэкономить на искусственном освещении бани.
Теперь, к вопросу бильярдных. Развлекательные помещения, как правило, располагают на вторых этажах бань. Автоматически идет деление строений на одно- и несколько-этажные.
Дополнительные площади можно отвести под тренажерный зал, комнату отдыха и чтения. Не возбраняется на 2-ом этаже и жилая зона. В бане из кирпича такая затея не рискованна, ведь искусственный камень не горюч.
Баня из кирпича своими руками
По требованиям пожарной безопасности расстояние от бани до соседских домов должно быть от 12-ти метров и больше. Это в случае топки дровами. Бывают бани с электрическими и газовыми котлами. Для них правила иное – 5 метров до домов соседей.
На собственном участке баню можно присоединить к любой жилой постройке. Экономятся материалы, к примеру, за счет смежной стены. К тому же, коммуникации и электропроводку проще делать.
Фундамент для кирпичной бани заливается минимум на метр. В глинистых почвах делают даже 1,2 метра. Исключением становится баня обложенная кирпичом. Если основная постройка деревянная, а облицовочные блоки тонкие, общий вес будет меньше, чем у цельнокирпичной парилки.
Выгодна, так же, обкладка бани лего кирпичом. Он легче обычного примерно на 300 граммов. Помножим на количество блоков для стройки и получим солидную экономию массы. Давить она будет на ленточный фундамент.
Именно такой заливают под бани. Иначе говоря, вместо сплошной плиты бетона делают лишь траншеи под коробкой, несущими стенами, топкой и, если таковые будут, столбами.
Стены для бани бывают с внутренними пустотами до 6-ти сантиметров и без них. В последнем случае нужно наружное утепление. При первом варианте утепляется пространство меж рядами блоков, к примеру, опилками со шлаком и известью. Смесь доступная и эффективная.
Плюсом, учитываем премудрости кладки. Избежать смещения вертикальных швов поможет выкладка наружной версты первого ряда тычковыми кирпичами, а второго ряда – ложковыми.
Внутреннюю версту первого ряда тоже делаем тычковой или ложковой. Под первой понимается кладка короткой стороной блока наружу. Ложковое расположение кирпичей показывает их длинные стороны.
Для нижней кладки до гидроизоляции советуют полнотелый кирпич. В нем нет внутренних пустот. Выше можно класть пустотелый. Он дешевле, ведь на блоки с воздухом внутри тратиться меньше глины. На нижних ярусы такие плиты не выдерживают нагрузки.
Сверху кладки оставляются пазы для балок перекрытия. Их устанавливают прямо на блоки, обвернув рубероидом. Открытыми остаются лишь торцы балок. Зазоры меж ними и стенами заполняют утеплителем.
В кирпичи же вбивают штыри для крепления настенных брусьев. В общем, типовой проект состоит примерно из 40-ка пунктов. Здесь требуется полагаться на опыт, или штудировать десятки источников, смотреть видео-ролики. В одной главе всего не уместишь. Проще разобраться с ценой кирпичной бани.
Цена бани из кирпича
Цена строения высчитывается на стадии сметы. В нее входят расходы на проект. Для типовой бани 6 на 6 метров это в районе 10 000 рублей. Следующая статья расхода – кровельные материалы, балки крыши и прочие ее элементы.
Далее, прибавляем стоимость стен и перегородок с учетом расходов на утеплители и цементный раствор. Проведение инженерных коммуникаций тоже входит в смету, как и приборы отопления, к примеру, котел.
Прибавляем к сему затраты на внутреннюю отделку, те же полки. Остается учесть стоимость инструментария и заложить 30 000-50 000 на непредвиденные расходы. Это при условии все того же типового проекта кирпичной бани 6 на 6 метров.
Проекты кирпичных бань, где и как они строятся, варианты планировок, фото и видео

Распечатать
07 Мая 2018
382
Первые упоминания о банях встречаются в исторических документах о Древней Греции. Конечно, внешний вид древнегреческой бани абсолютно отличался от современного варианта, но основывался на тех же принципах: нагревание помещения до высоких температур и создание условий с повышенной влажностью.
Традиционным материалом для строительства бань является дерево хвойных пород, но это далеко не аксиома. Например, сегодня уже никого не удивить видом эффектных, современных бань из красного кирпича.
Баня из кирпича является эффектным дополнением загородного участка
Особенности и преимущества кирпичной бани
Несмотря на высокую стоимость строительства, бани из кирпича пользуются особой популярностью. Не останавливает застройщика и длительное прогревание помещений в зимний период. Дополнительное утепление стен, потолка и пола поможет сгладить этот недостаток. Строительство и эксплуатация кирпичных бань имеет множество преимуществ:
- повышенная пожаробезопасность;
- долговечность строения;
- безопасность и экологичность материала;
- возможность создания уникальных проектов.
Баня из кирпича отлично выглядит и не нуждается в дополнительной наружной отделке.
Проекты бань из кирпича
Важным этапом начала любого строительства является проектирование объекта. Построить отличную баню из кирпича можно, использовав в качестве основы готовый типовой проект или разработав его самостоятельно с учетом личных потребностей и предпочтений.
Если участок имеет ограниченное пространство, можно обойтись строительством небольшой бани размерами 3Х4.
Самый простой проект небольшой бани размерами 3Х4
Большие площади участка дают свободный полет фантазии и позволяют легко реализовать проект любых размеров.
Проект бани с бассейном
Независимо от размеров, баня включает в себя несколько различных по назначению помещений, расположенных под одной крышей и разделенных перегородками:
- моечную;
- парилку;
- комнату отдыха.
Наличие и расположение других помещений планируют по желанию застройщика. В зависимости от назначения постройки и ее размеров, количество дополнительных комнат не ограничено.
Проект жилой бани
Продуманная внутренняя планировка и удобное расположение необходимых элементов в бане облегчает ее эксплуатацию и уход. Даже небольшие комнатки требуют разделения на функциональные зоны. Это позволит использовать их прямому назначению.
При оборудовании входной двери в комнате отдыха, зимой холодный воздух поступает в помещение и охлаждает его. Этого можно избежать, применив один из предложенных способов:
- строительство утепленного тамбура при входе;
- устройство крытой веранды;
- установка капитальной разделительной перегородки в комнате отдыха.
Проекты кирпичных бань включают подробную разработку каждого элемента:
- фундамента;
- стен;
- потолка;
- кровли.
Главным объектом проекта бань является печь. Она должна быть удобна в использовании и отлично прогревать помещение. Размер печи зависит от площади бани. Оборудованное место для хранения небольшого количества дров значительно облегчит обслуживание печи. Ее удобнее всего располагать со стороны комнаты отдыха.
Устройство печи из кирпича для бани
Металлические печи, предлагаемые производителями в самых различных вариациях, быстро нагреваются и просты в установке. Металлическую печь чаще всего обкладывают рядом кирпича, защищающего металл от перегрева.
Проекты бань больших размеров нередко предусматривают строительство санузла, кухни и других помещений. Реализация таких проектов осложнена устройством обогрева, ведь комнаты должны равномерно прогреваться. Для этого устанавливают дополнительные системы отопления:
- газовые котлы;
- электрические обогреватели;
- котлы на твердом топливе;
- конвекторы.
Камин для обогрева комнаты отдыха
Установка комбинированной системы отопления позволяет использовать самый доступный способ обогрева бани из кирпича больших размеров и регулировать расходы.
Выбор места установки кирпичной бани
Баня пожароопасна, поэтому при выборе места для ее строительства необходимо учитывать некоторые особенности.
- Расстояние от соседних построек и границ участка должно составлять более 12 метров при топке дровами и 5 метров при использовании газового котла или электроотопления.
- Для строительства бани из кирпича лучше выбирать возвышенный участок, не загроможденный постройками.
- При планировании строительства на берегу водоема необходимо отступить не менее 15 метров от берегов. Это позволит предотвратить затопление во время весеннего паводка.
- Вход в баню с южной стороны облегчит эксплуатацию в зимний период. Такое расположение особенно актуально для регионов с обильными снегопадами. Весной южная сторона гораздо раньше очищается от снега и быстрее просыхает.
- Если в бане предусмотрены окна, их располагают на западную сторону.
Проект удобной бани, совмещенной с гаражом глухой стеной
В целях экономии средств, баню нередко совмещают с летней кухней, гаражом или любым другим объектом, устанавливая между ними одну глухую стену.
Фундамент для кирпичных бань
Кирпичная баня это строение с достаточно немаленьким весом, поэтому для него требуется сформировать прочный фундамент. Его укладывают ниже точки промерзания грунта. Для разных регионов эти показатели индивидуальны и могут значительно отличаться.
Чаще всего для бани из кирпича выбирают ленточный фундамент, обеспечивающий надежную основу для тяжелого объекта. Несмотря на высокую стоимость и низкую скорость возведения, ленточный фундамент в полной мере обеспечивает прочность и надежность постройки.
Сложный грунт, проблемный рельеф и глубокое промерзание почвы в зимний период нуждаются в свайном фундаменте. Сваи устанавливают под углами бани, простенками, а также через каждые два метра.
Свайный фундамент для маленькой бани с ростверком
Строительство надежной бани из кирпича имеет свои особенности и требует формирования деревянного или металлического ростверка.
Как делается кладка кирпича
Для строительства бань чаще всего используют красный кирпич. Возведение стен происходит в соответствии с одной из технологий:
- кладка в 1,5 или 2 кирпича с последующим утеплением;
- возведение двойных стен с укладкой теплоизоляционного слоя.
Кладка в 1,5 кирпича обладает отличной прочностью. Возведение стен начинают с угла, выдерживая строгий перпендикуляр между ними.
В зависимости от расположения кирпича в ряду различают:
- ложковые ряды, которые укладывают длинной стороной кирпича вдоль стены;
- тычковые ряды предусматривают расположение кирпича короткой стороной поперек стены.
Схема укладки стен бани в 1,5 кирпича
Вдоль будущей стены натягивают шнур для ориентировки в горизонтах, концы которого устанавливают между крайними кирпичами.
Кладка стен из кирпича имеет ряд особенностей.
- Раствор наносят на всю поверхность кирпича равномерным слоем.
- Кирпич равняют на плоскости рукояткой кельмы, удаляя излишки раствора.
- Для раскола материала используют молоток-кирочку.
- При кладке стен в два кирпича, раствор наносят в большом количестве, достаточном для кладки обоих рядов.
- Битый кирпич не используют в простенках и перевязочных узлах.
- Для равномерного распределения давящей нагрузки тяжелых стен используют перевязку кладки.
Технологию строительства стен для бани в 1,5 кирпича можно посмотреть в следующем видео:
Работы по утеплению стен
Холодные зимы требую утепления бани из кирпича. Наружное утепление кирпичных стен используют редко. Это обусловлено особенностями эксплуатации бани в зимний период.
Внутреннее утепление позволяет гораздо быстрее прогреть помещение зимой. Особое внимание здесь уделяют парилке. Несмотря на температуру снаружи, баню необходимо протапливать хотя бы до 60°С.
Строительство стен бани в два ряда предусматривает укладку утеплительного слоя между ними. Здесь можно использовать:
- минеральную вату;
- пенополистирол;
- эковату.
Можно оставить воздушный зазор пустым.
https://www.youtube.com/watch?v=LnXxlNIZo4E
В качестве декоративного слоя для внутренней отделки бани можно использовать деревянную вагонку. Она обладает отличными влагостойкими качествами, устойчива к перепадам температур и является безопасным материалом для эксплуатации.
Вагонка крепится на деревянный каркас со слоем утеплителя. В качестве утеплителя выбирают экологически безопасный материал, отлично противостоящий размножению грибков и бактерий, устойчивый к влажной среде и способный хорошо держать форму долгие годы.
Баня, утепленная вагонкой
В качестве пароизоляционного слоя для бани из кирпича используют алюминиевую фольгу. Она исполняет роль отличного влагозащитного слоя, отражает тепловое излучение и не пропускает нагретый воздух к холодным стенам.
проекты бань из кирпича позволяет отлично отдохнуть после трудовой недели, набраться сил и расслабиться. Удобная планировка способствует функциональному разделению пространства и удобному обслуживанию бани в процессе эксплуатации. Проект, выбранный с учетом запросов каждого члена семьи, сделает баню любимым местом для спокойного отдыха.
Выбираем проекты бань из кирпича – как сделать ее удобной, практичной и красивой – Kladka kirpicha

Красивая кирпичная баня станет украшением вашего участка
Благоприятное и целебное воздействие на здоровье человека русской бани трудно отрицать. Поэтому вопросом о ее строительстве рано или поздно задается практически каждый владелец собственного дома или дачи.
Наиболее распространенными являются бани из древесины. Однако такой вариант устраивает далеко не всех. Причины могут быть разными, но проекты бань из кирпича пользуются устойчивым спросом.
Рассмотрим более подробно, в чем причина такого интереса, их достоинства и недостатки, а также конкретные примеры планировок.
Почему именно кирпич?
Баня – одно из древнейших изобретений человечества, но ее актуальность в настоящее время совсем не уменьшается. Более того, массовое строительство индивидуального жилья привело к возросшему спросу на эти постройки. Большая часть их возводится из бревна или бруса.
Интересный вариант каменной постройки
Но все чаще стали строиться основательные сооружения из других материалов, в частности из кирпича. В чем достоинства таких бань?
Основные плюсы использования керамики
Дерево – отличный материал для бани, но он имеет свои недостатки.
В чем же преимущества кирпичных строений перед деревянными:
- Кирпич прогревается гораздо медленнее, чем дерево, но и держит тепло он дольше. Для банных строений это немаловажный момент.
- Если основной дом возведен из кирпича, то постройка кирпичной бани органично впишется в общий дизайн.
- Из кирпича можно возвести здание практически любой формы, в том числе с закругленными углами. Мелкие керамические элементы дают большие возможности, чем крупноразмерные деревянные.
- Можно выполнить самую необычную планировку помещений.
- Эстетическая составляющая качественных материалов часто тоже является преимуществом.
- Внешнюю отделку таких стен можно выполнить при помощи различных материалов.
- Стойкость к огню у каменных материалов несравнимо выше, что является весьма важным моментом для банных построек.
- Долговечность кирпичной постройки чаще всего гораздо больше, чем у деревянных зданий.
- Не требуется ждать усадки стеновых конструкций. Внешнюю и внутреннюю отделку можно производить сразу после возведения постройки.
Баня и гостевой домик – отличное сочетание
Каждый выбирает наиболее важные для него моменты, исходя из индивидуальных требований.
Недостатки материала
Однако стоит учитывать и некоторые минусы применения кирпича для банных построек:
- Требуется хорошая гидроизоляция стеновых конструкций – воздействие высокой температуры и влажности губительно воздействует на кирпич.
- Кроме того, подобная постройка требует обязательного утепления, если стены возводятся сплошным способом. Приемлемо в этом случае выполнять облегченную кладку, когда между кирпичами укладывается или засыпается слой утеплителя. Это также снизит нагрузку на фундамент и затраты на его устройство.
- Цена на такую постройку может оказаться гораздо выше, чем обойдется деревянное здание.
- Возведение бани из кирпича своими руками требует определенных профессиональных навыков.
Вариант облегченной кладки – инструкция по устройству
Чаще всего для постройки применяется обычный керамический кирпич: полнотелый и пустотный. Если планируется отделка, то можно использовать крупноформатные блоки — срок строительства существенно сократится. Также применяются силикатные изделия.
Варианты проектов
Если будет строиться баня из кирпича – проекты можно приобрести готовыми или заказать индивидуально. Как правило, основным отличием первого варианта является то, что он уже проверен на практике. Все ошибки и недостатки в таких случаях исправляются архитектурными бюро.
Из такого материала можно выполнить самые оригинальные здания
Перед покупкой готового проекта необходимо проанализировать разные варианты планировки и расположение на участке. В соответствии с требованиями определяются форма здания, размеры и этажность будущей постройки.
К зданию надо предусмотреть удобный подход или подъезд, а также возможность проведения коммуникаций. Чем ближе баня будет расположена к основному дому, тем проще будет все это устроить.
Что представляет собой готовый проект: баня из кирпича имеет примерно такую планировку:
- Парная;
- Душевая;
- Санузел;
- Комната отдыха.
Данный вариант наиболее подходящий для приятного и комфортного здорового отдыха. Небольшие постройки могут возводиться и без санузлов.
Наиболее распространенные проекты дачных бань из кирпича — вариант планировки
Более масштабные строения могут иметь также:
- Крытые террасы;
- Бассейны;
- Гостевые комнаты;
- Бильярдные и многое другое.
Баня с большой террасой
Индивидуальный проект может с самого начала полностью учитывать все особенности участка и требования владельца. Но обойдется он дороже. Здания из керамического кирпича можно оставлять без внешней отделки.
Но зачастую, чтобы придать ему более эстетичный вид, фасады оформляют:
- Штукатуркой;
- Облицовочным клинкером или плиткой;
- Деревом.
Обычно внешний вид постройки выполняют под экстерьер основного дома.
Настоящая русская баня на дровах — фото
Внутреннюю отделку, особенно помещения парной, лучше всего выполнить из натуральной древесины.
Одноэтажная баня с террасой
Проекты бани из кирпича с террасой довольно распространены. Наличие крытой площадки позволяет устраивать барбекю вне зависимости от хорошей погоды. При необходимости можно выполнить раздвижные стеклянные двери, которые легко закрыть на случай дождя.
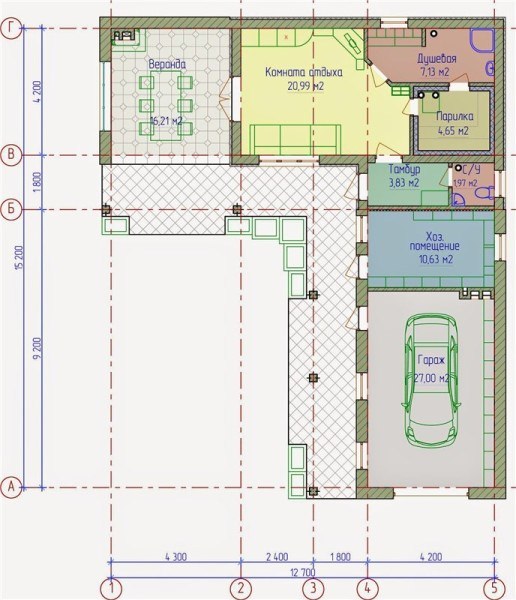
Вот проект одноэтажной кирпичной бани общей площадью 41,2 м2. Внешняя отделка фасада выполнена из дерева и штукатурки. Перекрытия осуществляются по деревянным балкам. Кровлю можно устроить из различного вида черепицы.
Фасад 1Фасад 2Фасад 3
Экспликация помещений:
- Входной тамбур – 3,3 м2.
- Кладовая – 3,0 м2.
- Комната отдыха – 15,0 м2.
- Банная комната с санузлом – 9,6 м2.
- Душевая – 2,9 м2.
- Парилка – 7,3 м2.
Чертеж — планировка первого этажа
Большим преимуществом данного проекта является просторная крытая терраса, на которой можно отлично посидеть с семьей или друзьями на свежем воздухе.
Двухуровневая баня с мансардой
Часто пространство под крышей одноэтажных зданий используют под хозяйственные нужды или в качестве дополнительных комнат отдыха.
Вот отличный проект бани с мансардой общей площадью в 94,9 м2:
- Под застройку потребуется участок 91,2 м2, его минимальные размеры – 19,7 м х 15,0 м.
- Стены можно выполнить из обычного кирпича или керамических блоков.
- Перекрытия здесь предусмотрены монолитные.
- Кровля – металлочерепица, керамическая черепица или цементно-песчаная черепица.
Вид 1Вид 2Вид 3
Площадь первого этажа – 50,3 м2. Здесь располагаются:
- Тамбур – 4,3 м2.
- Кухня – 8,5 м2.
- Коридор – 1,6 м2.
- Санузел – 4,2 м2.
- Парилка – 7,0 м2.
- Комната отдыха – 24,7 м2.
Планировка первого этажа – проект бани с парилкой из кирпича
Площадь мансардного этажа – 44,6 м2. Под крышей расположены:
- Холл – 6,1 м2.
- Летняя комната – 16,8 м2.
- Летняя комната – 13,9 м2.
- Санузел – 7,8 м2.
Планировка мансардного этажа
Такой вариант удобно использовать также в качестве дома для гостей.
Нестандартный проект
Чем хорош кирпич – из него можно выполнить здания практически любой нестандартной конфигурации, в том числе скомбинировать с другими материалами. Проект бани из кирпича и оцилиндрованного бревна.
Оригинально и в то же время такое сочетание поможет избавиться от недостатков обоих материалов, используя все их преимущества. В нем также предусмотрена крытая терраса и небольшое мансардное помещение.
Фасад, вид 1Фасад, вид 2Фасад, вид 3Фасад, вид 4
На первом этаже удобно расположены все основные помещения:
- Входной тамбур – 2,64 м2.
- Помещение для отдыха, совмещенное с кухней – 15,66 м2.
- Душевая – 6,8 м2.
- Парилка – 7,88 м2.
- Санузел площадью 1,75 м2 с выходом в котельную – 2,34 м2.
- Тамбур – 0,94 м2.
- Гостиная с кухней и лестницей – 14,05 м2.
- Совмещенный санузел – 3,59 м2.
- Крытая терраса – 37,34 м2.
Первый этаж
На втором уровне располагаются спальная комната площадью 21,91 м2 и большой балкон – 8,51 м2.
Мансардное помещение
При выборе нестандартного варианта необходимо сочетание его с основным домом и другими постройками на участке.
Бани с бассейном
Если позволяет бюджет, то сделать внутренний бассейн в помещении очень оптимально. Не везде есть внешние водоемы около участка. Устройство бассейна на улице потребует значительных затрат на его обогрев в холодное время года. И ухаживать за таким сооружением достаточно сложно.
Проекты бань с бассейном из кирпича гораздо сложнее и более затратно финансово, чем простые сооружения. Кроме того, увеличение уровня влажности из-за постоянного наличия воды в помещении, требует более серьезного подхода в устройстве всей электропроводки. Она должна тщательно изолироваться.
Наиболее простым способом является покупка готового пластикового бассейна. Его можно подобрать по размерам и установить самостоятельно. Более сложно выполнить настоящий водоем. Основной проблемой в этом случае является проведение водоснабжения и канализации.
Небольшая угловая чаша отлично подойдет для любого размера помещенияУстройство пластиковой чащи бассейнаВнутренний бассейн очень удобен
Вот некоторые проекты построек с бассейном. Большая одноэтажная баня, в которой располагаются:
- Тамбур – 2,0 м2.
- Помещение для переодевания – 5,4 м2.
- Коридор – 0,9 м2.
- Кладовая – 2,0 м2.
- Комната для отдыха – 8,9 м2.
- Помещение с бассейном – 14,2 м2.
- Парилка – 5,8 м2.
- Душевая – 3,0 м2.
Проекты бань с бассейном из кирпича
Некоторые строения вполне можно использовать в качестве гостевых домов. Здание размером 10,34 м х 13,56 м имеет три уровня: цокольный, первый этаж и мансарду.
В цокольном этаже размещены:
- Котельная – 10,5 м2.
- Вентиляционная камера – 17,9 м2.
- Кладовая – 20,4 м2.
- Два технических помещения площадью 33,4 м2 и 5,2 м2.
Планировка цокольного уровня
Экспликация помещений первого этажа:
- Входной тамбур – 4,3 м2.
- Подсобное помещение – 5,4 м2.
- Комната для отдыха – 22,7 м2.
- Коридор – 2,2 м2.
- Душевая комната – 1,5 м2.
- Гардеробная – 6,7 м2.
- Помещение сауны – 4,5 м2.
- Бассейн – 40,6 м2.
План расположения помещений на первом этаже
Помещения под крышей можно использовать в качестве гостевых: спальня, кухня и санузел.
- Жилая комната размером 26,7 м2.
- Совмещенный санузел – 3,7 м2.
- Помещение кухни – 4,9 м2.
Мансардный этаж – планировка помещений
Кирпичные бани предпочитают те, кто строит надолго. Свои достоинства у этих строений часто перекрывают их недостатки. Если вы выбрали такой вариант, то стоит тщательно продумать все нюансы постройки из этого материала.
При выборе есть возможность применить всю вашу фантазию. Больше информации можно получить из видео в этой статье: «Проект – баня из кирпича».















































